リノベーション事例

2025.12.23

まろやかなグレー

  • 首都圏
  • マンション
  • 中古を買ってリノベーション
  • 一人暮らし
  • 家全体

株式会社ネクサス・アールハウジング(ひかリノベ)

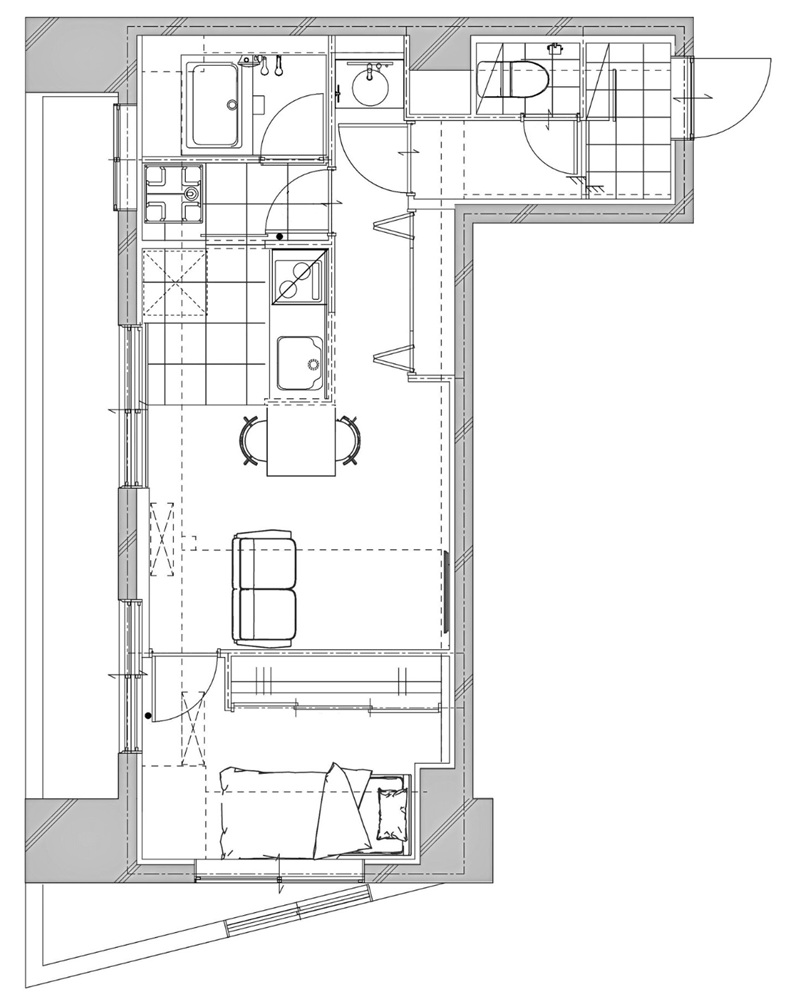
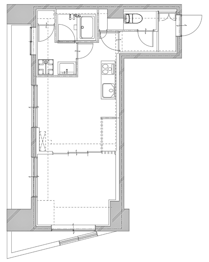
「リビングと寝室に区切りをつけたい」と希望されていたお施主様。ワンルームの中心に可動間仕切りという既存の間取りから、壁を設けて独立した寝室に。さらにキッチンや洗面を移設して、LDK空間を最大化。キッチン移設によって生まれた空間に収納棚とアール型ニッチの飾り棚を、寝室の壁一面にクローゼットをしつらえ、収納計画も充実。玄関土間も拡張し、可動式の靴棚を造作しました。

インテリアや照明も丸みのデザインで揃え、シンプルでモダンながらもやわらかなムード。リビング入ってすぐのアール型ニッチの飾り棚は、お気に入りのフレグランスや小物を並べて、空間のフォーカルポイントに。キッチン奥のアール開口からは、ランドリースペースのクラシカルなリーフ柄クロスが覗きます。ランドリースペースは脱衣スペースを兼ねているため、ロールスクリーンで目隠し可能。浴室隣にオープンスタイルでしつらえた洗面台も、ボウルや鏡は丸みのデザインで統一しました。

費用 990万円(税込) 物件種別 マンション
リノベーション
形態
中古を買ってリノベーション 家族構成 一人暮らし
築年数 51年 面積 36.83㎡
施工期間 3ヶ月

間取り

BEFORE 1DK

AFTER 1LDK

お問い合わせ先

株式会社ネクサス・アールハウジング(ひかリノベ)

〒272-0804 千葉県市川市南大野1-14-2

TEL:0120-818-250

リノベーション事例一覧に戻る