リノベーション事例

2025.12.22

心地よさは、ちょうどいいバランスから

  • 首都圏
  • マンション
  • 中古を買ってリノベーション
  • ファミリー
  • 家全体
  • 水まわり
  • 居室・その他

グローバルベイス株式会社

同じエリアの賃貸マンションに約6年間お住まいだった施主さまファミリー。住み慣れたこのエリアが大好きで、娘さんが保育園に通い始めたこともあり、「保育園を変えずに、できるだけ近くで」との思いから、コロナ禍の前から少しずつ物件を探していたそうです。
「リノベーション済みの物件もいくつか見ましたが、なかなか自分たちの理想に合うものがなく、いいなと思う物件はすぐに決まってしまって。私たちは最初からフルリノベーション前提で中古マンションを探しており、エリアもかなり絞っていたため、条件に合う物件をひたすらチェックしていました。このマンションは、内見したその日に申し込み、ほかに2組と競合しましたが、営業担当が私たちの希望や状況を売主さんに丁寧に伝えてくださり、無事に購入できました。」

目指したのは、“ピンとしすぎず、でもあたたかくなりすぎない"絶妙なバランス。全体のカラーを白・木・グレーで統一し、あえて黒は使わず、ツヤとマットの質感も意識して自然な雰囲気に仕上げました。
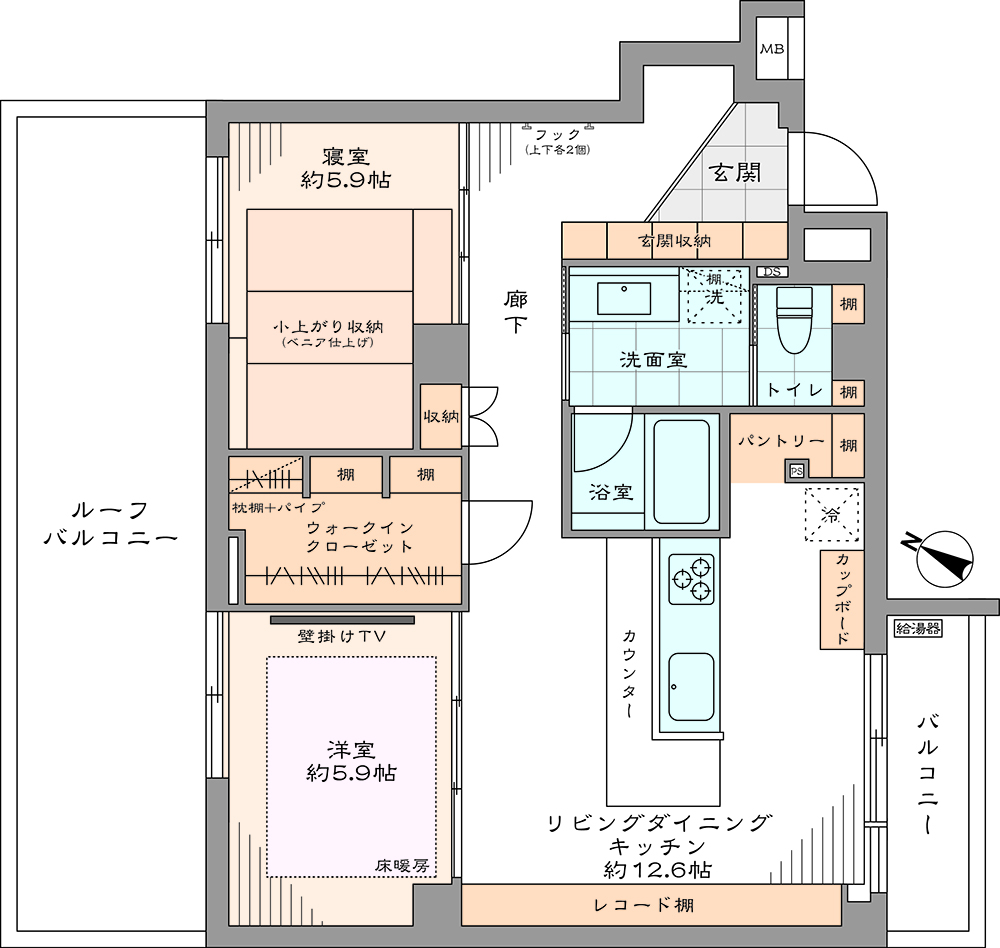
玄関から目を引くのは、ご主人こだわりの造作レコード棚です。1つの棚に約100枚のレコードが収まり、前の住まいから持ってきたお気に入りを厳選して収納しています。棚板に合わせ、壁に掛けた絵画のフレームも同色で統一。前の住まいで寝室に置いていたレコードをリビングと一体の空間に移したことで、音楽がより身近に感じられるようになりました。
キッチンは奥さまのこだわりが詰まった空間です。造作のL字カウンターは前の住まいで使っていたテーブルの脚を再利用し、腰壁は優しいグレーのモールテックス仕上げに。手元が隠れることで空間がすっきり見え、お気に入りのポイントだそうです。構造上、動かせない柱があるスペースは、棚やフック、マグネットボードを設けてパントリーとしました。

費用 1860万円(税込) 物件種別 マンション
リノベーション
形態
中古を買ってリノベーション 家族構成 ファミリー
築年数 45年 面積 64.26㎡
施工期間 約3ヶ月

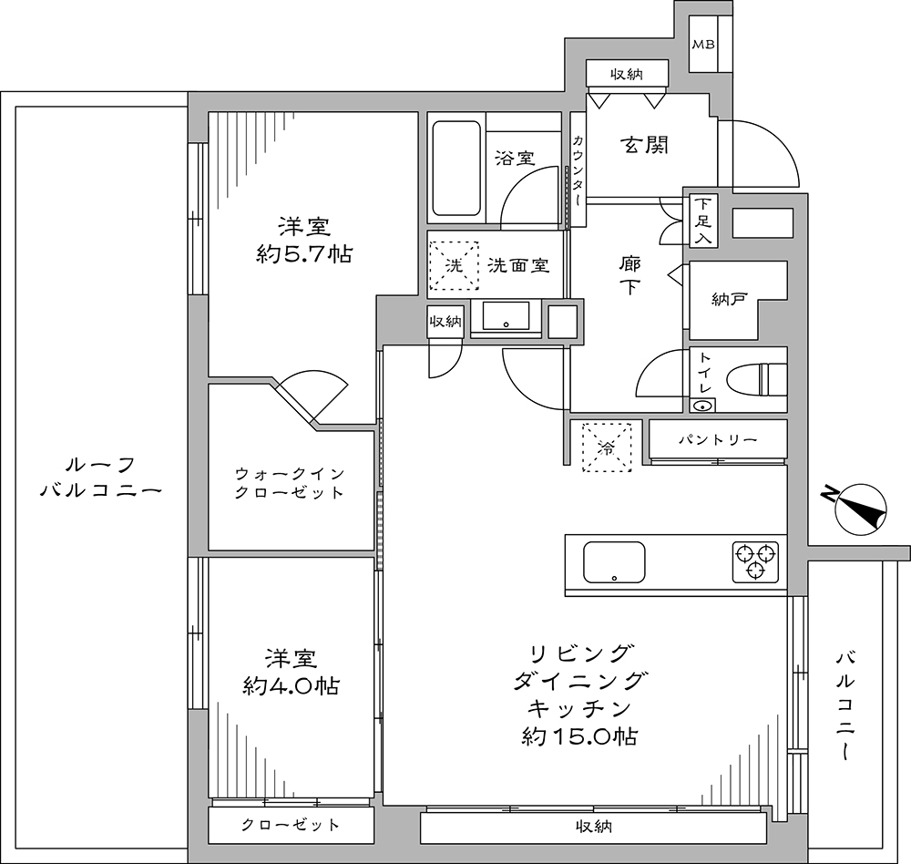
間取り

BEFORE 2LDK+WIC

AFTER 2LDK+WIC

お問い合わせ先

グローバルベイス株式会社

〒150-0031 東京都渋谷区桜丘町3-2 渋谷サクラステージ SAKURAタワー6F

TEL:03-6416-4535

リノベーション事例一覧に戻る