リノベーション事例

2025.11.17

透明な境界

  • 首都圏
  • マンション
  • 中古を買ってリノベーション
  • 二人暮らし
  • 家全体
  • 水まわり
  • 居室・その他

株式会社サンリフォーム(ハコリノベ)

築31年のマンションをフルリノベーション。

お気に入りのモノが暮らしの一部となる、施主様のお住まい。 山登りが趣味の奥様と、カメラを楽しむご主人。おふたりでキャンプにも出かけるというライフスタイルが、そのままインテリアにも表れています。 キッチンカウンターの棚にはご主人のカメラを、ワークスペースの壁には奥様の登山ギアを引っ掛けて収納。 趣味の道具が空間を彩りながら、見せる収納として整理のしやすさも実現しました。 日当たりの良い角部屋の窓際ではグリーンがすくすくと育ち、出窓のカウンターには旅の思い出を並べて、眺めを楽しめる心地よい場所に。 LDKの一角にあるヌックはコンパクトでおこもり感を演出しながら、内部に本棚を、ベンチ下も収納として活用できる実用性も確保しました。 また、リビングダイニングを横断する大きな梁には、梁下に沿って木製の大きなアールを設け、圧迫感を重厚なデザインに変える工夫を加えています。 住まいの象徴となる大きなアールが空間をやわらかくゾーニングし、ヌックの開口部に施した小さなアールとリンクすることで、全体にやさしい統一感を生み出しました。 透明な境界で区切りつつも光が巡り、アール越しに見える景色が何気ない日常も少し特別に感じさせてくれます。

費用 1500万円(税込) 物件種別 マンション
リノベーション
形態
中古を買ってリノベーション 家族構成 二人暮らし
築年数 31年 面積 61.84㎡
施工期間 3ヶ月

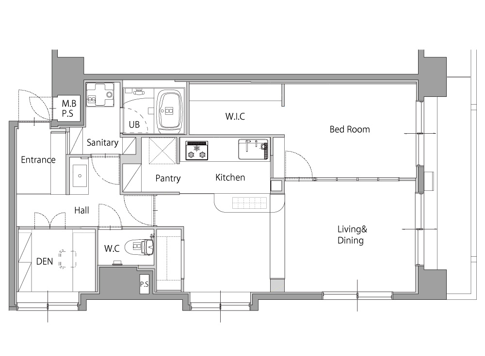
間取り

BEFORE 2LDK

AFTER 2LDK+WIC

お問い合わせ先

株式会社サンリフォーム(ハコリノベ)

〒550-0015 大阪府大阪市西区南堀江3-2-1 プラザ10ビル

TEL:0120-985-115

リノベーション事例一覧に戻る