リノベーション事例

2025.10.25

かまくら秘密基地のダウンリビング

  • 首都圏
  • マンション
  • 持ち家をリノベーション
  • ファミリー
  • 家全体

株式会社ネクサス・アールハウジング(ひかリノベ)

マンションのフルリノベーション事例

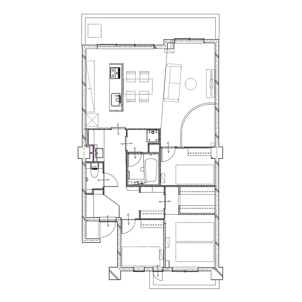
水廻りを含めた間取りの抜本的な見直しを行いました。浴室を住戸の中心に配し、バルコニー側をLDK、玄関側を家族各々の個室で構成。二人のお子様の子供部屋と、夫婦の寝室、大容量のWICを確保しました。生活の中心となるLDKは、和室を取り込み二室分の広さに。あらわし天井で天井高も最大限に活かし、開放的な大空間LDKに。床はリビング側を一段下げ、段差でダイニングとゾーニングしました。「かまくら」は収納だけでなく、お子様のプレイスペースとしても活躍しそうです。壁面の梯子を上ると、デスクカウンターと掘り炬燵、三ケ所6口のコンセントをしつらえたワークスペースとなっています。OSB合板の床がナチュラルで、こちらも大人の秘密基地といった印象です。

キッチンはもともと独立した台所でしたが、LDK一体の対面レイアウトに。壁がなくなったことで玄関からリビングへ至る通路が一直線となり、閉塞感が解消されました。
玄関は框に段差を設けずフラットな形状に。広めにとった通路幅と相まって、開放感抜群のホールとなっています。
洗面室も独立型からオープンスタイルに。リビング手前の通路に洗面コーナーを配置しました。洗面は、ランタン型のモザイクタイルと、クラシカルな焼物天面の水栓が、美しい家具のように映える空間となっています。玄関右手には収納スペースを集約。外出前/帰宅後の着替えがスムーズにできるよう計画しました。

費用 1400万円(税込) 物件種別 マンション
リノベーション
形態
持ち家のリノベーション 家族構成 ファミリー
築年数 29年 面積 78.00㎡
施工期間 4ヶ月

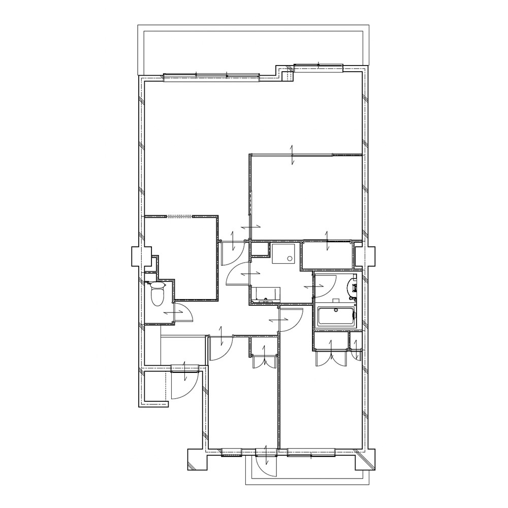
間取り

BEFORE 2LDK

AFTER 2LDK

お問い合わせ先

株式会社ネクサス・アールハウジング(ひかリノベ)

〒272-0804 千葉県市川市南大野1-14-2

TEL:03-6658-4648

リノベーション事例一覧に戻る