リノベーション事例

2025.10.24

和箪笥と英國アンティーク

  • 首都圏
  • マンション
  • 持ち家をリノベーション
  • ファミリー
  • 家全体
  • 水まわり
  • 居室・その他

株式会社ネクサス・アールハウジング(ひかリノベ)

英国への海外転勤から帰国したT様ご一家。渡英中は賃貸に出していた所有物件を、一家の新しい住まいとしてリノベーションしました。

もっともこだわったのは「片付けの動線」。
天井高いっぱいに造作した三枚引き戸のリビング収納、寝室収納、洗面室手前のリネン庫と、生活空間を圧迫することなく充分な容量を確保した収納計画。
キッチンは、60cm幅の大容量食洗機から背後のカップボードへ、振り向く動きで移し替えられる最短動線。ワークトップには、熱い鍋をそのまま置いても変色や変形がなく、汚れを弾くセラミック素材を採用。床はロボット掃除機が家じゅうを走行できるよう、全室同じフロアタイルで統一し、見切りの無い完全フラットフロアで仕上げました。

緻密な照明計画も本件のポイント。
高い天井を活かすため、またテレビを置かずプロジェクターを使用することから、リビング照明は天井埋め込みのダウンライトを採用。ダイニング上のランプと併せ、昼間/夜間/お子様のリビング学習時とシーンごとの調光・調色パターンをライコンで制御しています。
照明はお部屋の印象を左右する重要な要素のひとつ。「美術館のよう」な端正さは、ニュアンスある表面感の壁や床に静謐な光と影をおとす、この照明計画に因るところも大きいのかもしれません。

費用 1018万円(税込) 物件種別 マンション
リノベーション
形態
持ち家のリノベーション 家族構成 ファミリー
築年数 20年 面積 80.06㎡
施工期間 3ヶ月

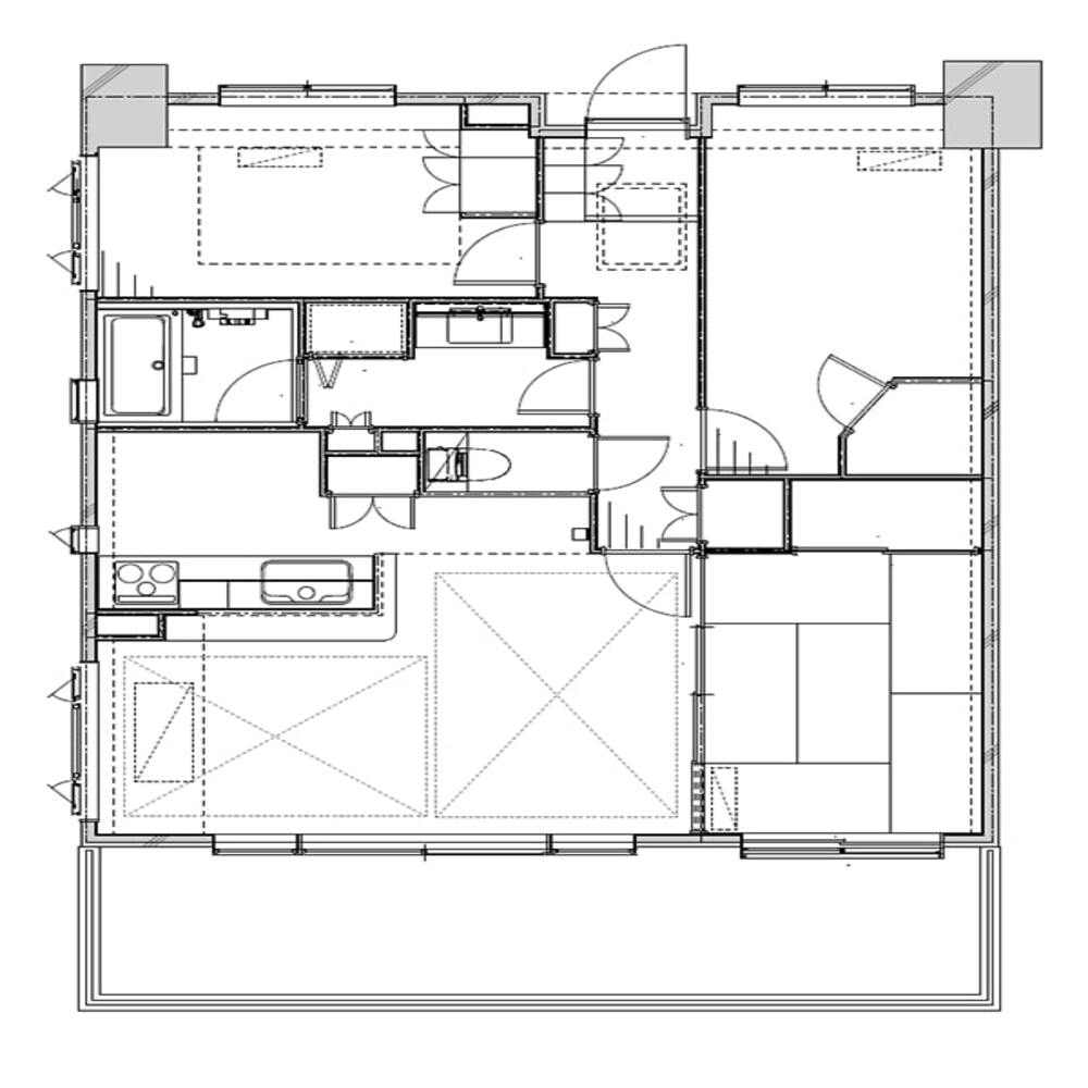
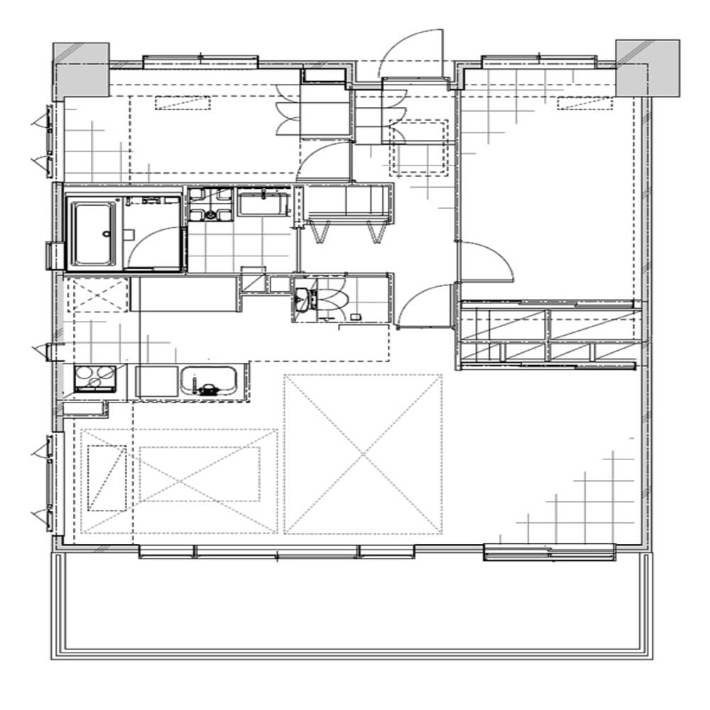
間取り

BEFORE 2LDK

AFTER 3LDK

お問い合わせ先

株式会社ネクサス・アールハウジング(ひかリノベ)

〒272-0804 千葉県市川市南大野1-14-2

TEL:03-6658-4648

リノベーション事例一覧に戻る