リノベーション事例

2025.10.24

ぐるり動線、キャットウォークと造作本棚の「大人の秘密基地」

  • 首都圏
  • マンション
  • 中古を買ってリノベーション
  • 二人暮らし
  • 家全体

株式会社ネクサス・アールハウジング(ひかリノベ)

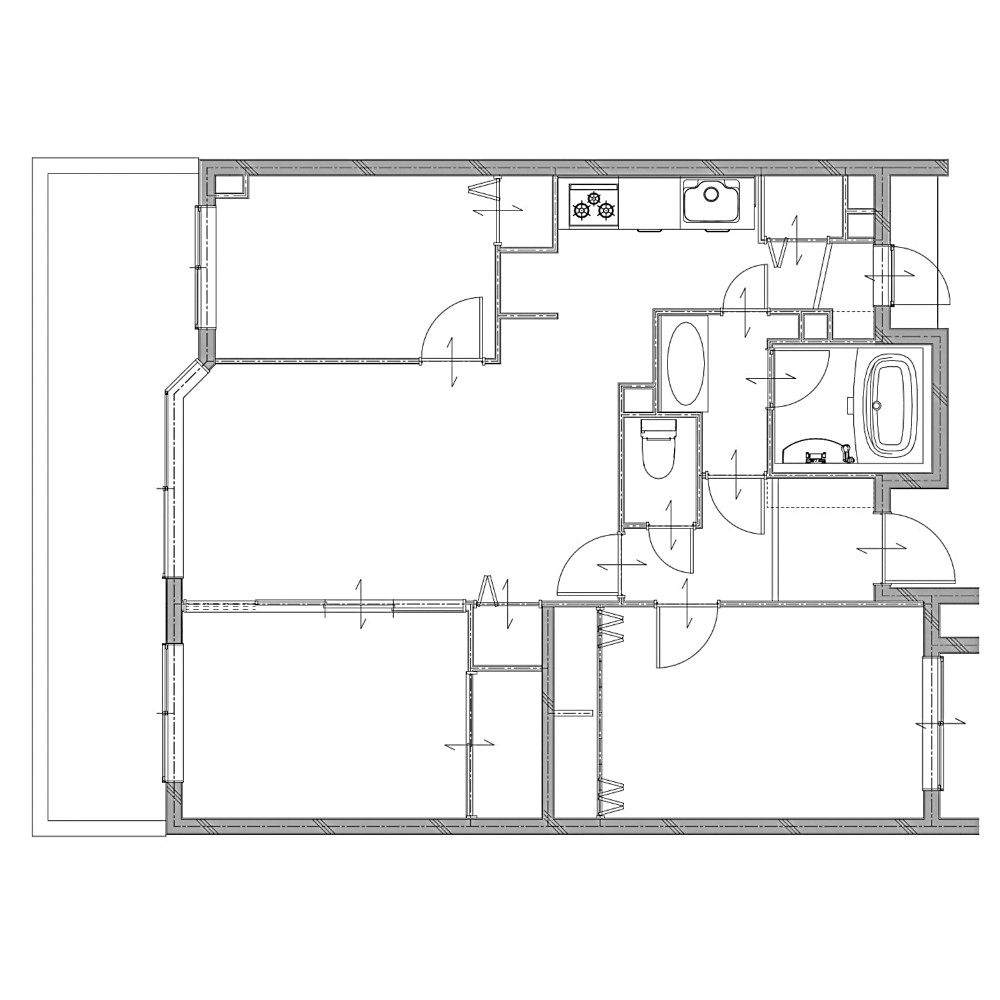
既存の間取りはリビングと和室を含む3つの居室、玄関脇の孤立した一室と、部屋同士が分断された構成。本件では『回遊動線を生かした暮らしやすい空間に』をテーマに、全面的に見直すこととしました。

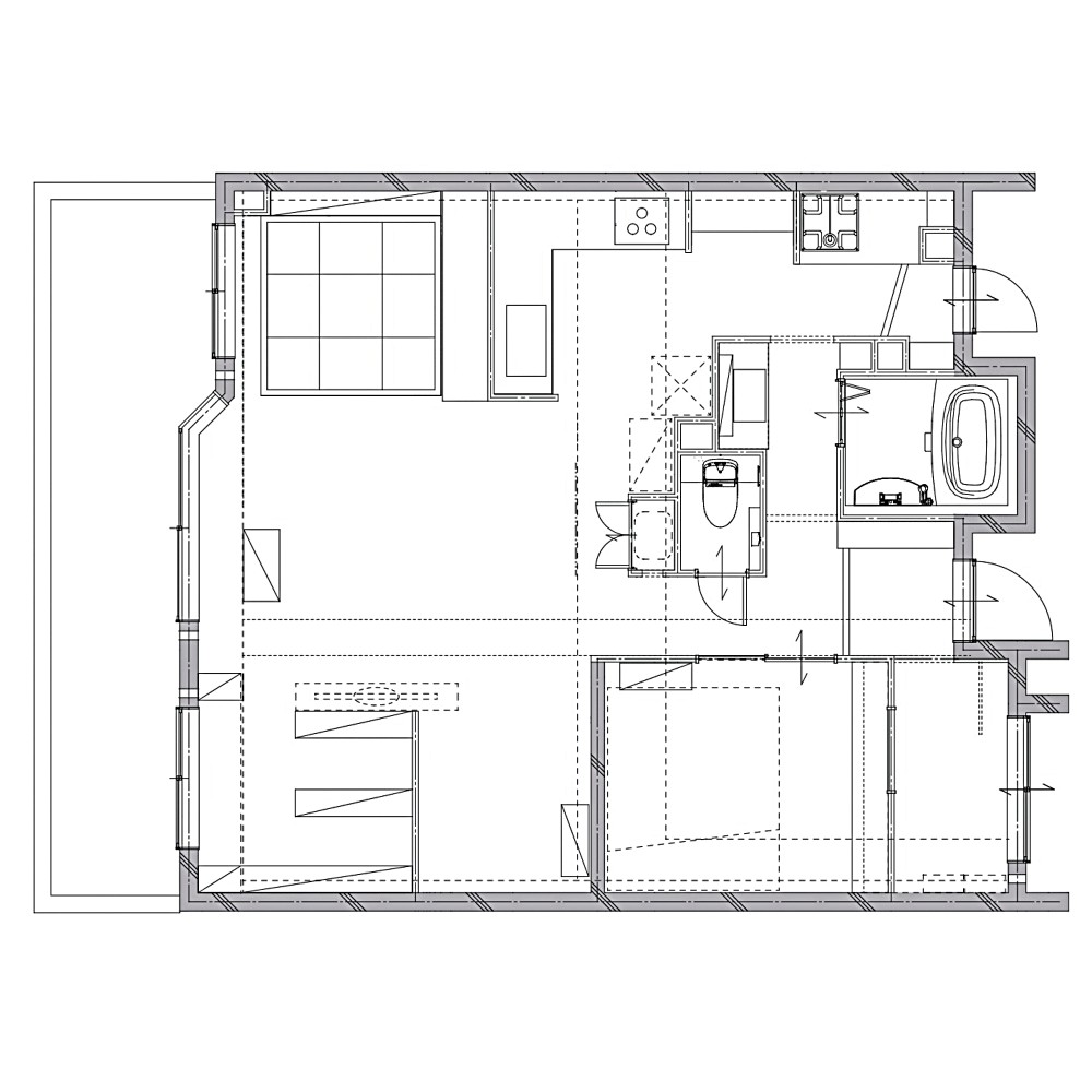
マンションですが勝手口のあるユニークな物件。勝手口からキッチンへ直行できる便利さはそのまま、さらに洗面コーナー/ランドリー/キッチンと、表玄関からもぐるりと回遊できる動線にアップデートしました。
メイン空間はLDK・書斎・防音室が集約した多機能リビング。キッチンはI型からL型にレイアウトを変え、リビング側にカウンターをしつらえて、ダイニングを兼ねるスタイルに。ダイニングチェアは置かずに、小上がり畳を据えました。この小上がり、冬場は中央の畳を上げて掘り炬燵になるオリジナル仕様の造作品。周囲は収納空間になっており、季節もののリネン類などを収めています。
書斎の隣の白い扉は、置き型のピアノ演奏用防音室。置き型防音室も近年はさまざまなサイズや楽器に対応した製品が発売されていますが、サイズが大きくなればなるほどスペースの確保が課題となります。本件では、リビングに面した本棚と、防音室を設置した際のラインをピッタリ揃えることで、圧迫感のない空間設計を実現しています。
性能面では、すべての窓に内窓を設置。南向きで窓の多い住戸は、陽当たりがよい反面、アルミ製のシングルサッシでは外気の影響を受けやすいというウィークポイントがあります。二重サッシとすることで、アルミサッシ物件でも、気密性を充分に高めることが可能です。

費用 1640万円(税込) 物件種別 マンション
リノベーション
形態
中古を買ってリノベーション 家族構成 二人暮らし
築年数 24年 面積 71.16㎡
施工期間 3ヶ月

間取り

BEFORE 3LDK

AFTER 1LDK

お問い合わせ先

株式会社ネクサス・アールハウジング(ひかリノベ)

〒272-0804 千葉県市川市南大野1-14-2

TEL:03-6658-4648

リノベーション事例一覧に戻る