リノベーション事例

2025.09.19

海岸まで1分の海街Memory

  • 首都圏
  • マンション
  • 賃貸リノベーション
  • 家全体
  • 水まわり
  • 居室・その他
  • 屋外

明和地所株式会社

キッチンが閉鎖的で暗い印象の部屋でした。
オーナー住戸になっていましたが、間取りのレイアウトがうまくいかず家具がおきにくい空間でした。
せっかくの100㎡近くの住戸が広さを活用できず、住宅としても多目的としても使いづらい状況でした。
トップライトがあるにもかかわらず日差しを感じられないくらい印象でした。

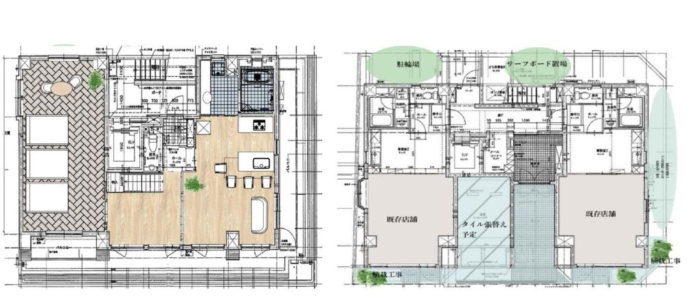
海まで1分の1棟店舗併用賃貸マンションをリノベーション。
好立地の1棟物件で内外装を海風を感じる新しい建物に改装しました。
賃貸マンション部分は経年劣化による配管更新や木下地を一掃し新規交換。
最上階のペントハウスは賃貸またはオーナー住戸・ゲストハウス・民泊等に利用できる
あらたな空間として生まれ変わりました。
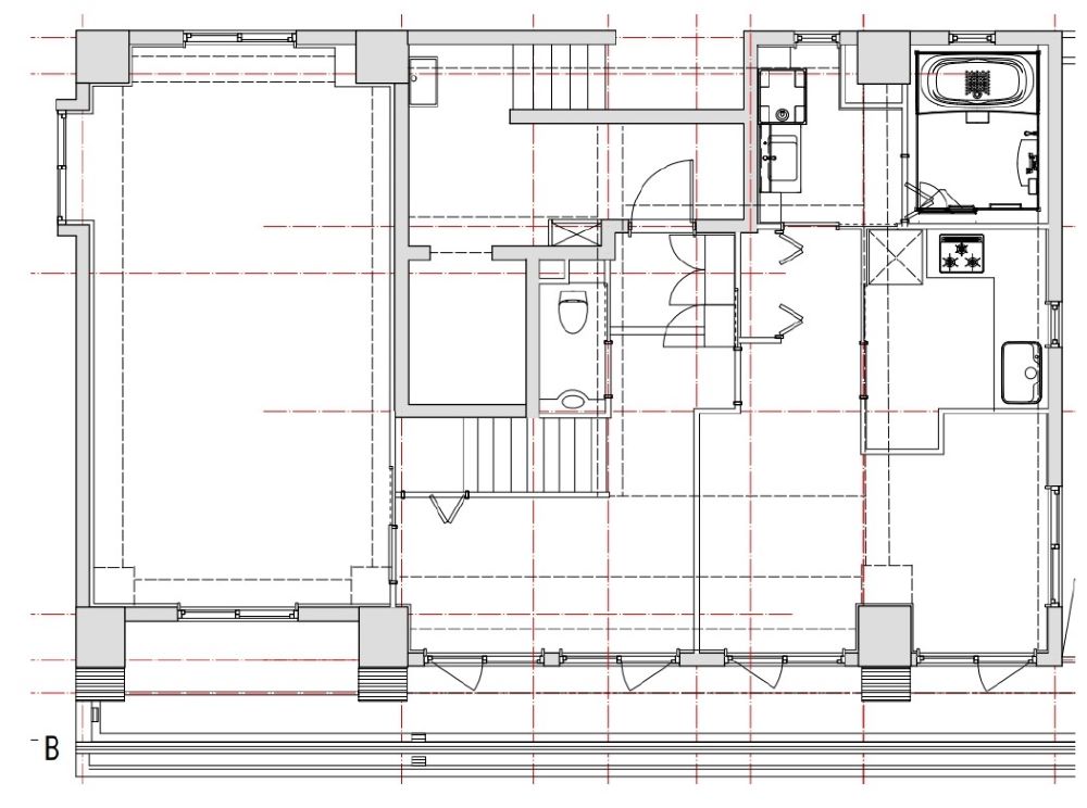
最上階の部屋はトップライトのある明るさを保ちつつ、LDKは印象的なブルーの
壁紙を基調としたさわやかな印象の空間へシフトチェンジ。壁紙だけで印象がガラリと
変わりさわやかな空間を印象づけています。
壁紙はメーカーさんとのご協力のもと、好立地にふさわしいコラボルームの実現
が可能になりました。
洋室は大人数で中長期滞在できるような広めの多目的スペースを実現。
可変性に富んだバカンスを楽しめる部屋に仕上がりました。
外構には新たなグリーンや風通しの良いガラス扉を設置。また、
海岸近くから近所の方も利用できるようなシャワーブースを整備しました。
サーフボード洗い場やペットの足洗いにもなり使い勝手非常によく、
入居者様だけではなく海を愛する近隣の皆様にも利用していただけるようなふれあい
空間が実現しました。

近隣の皆様にも長く愛してもらえるような外構作りで、海と人とが触れ合える
優しい空間をめざしました。

費用 2300万円(税込) 物件種別 マンション
リノベーション
形態
リノベーション賃貸 家族構成 その他
築年数 23年 面積 641.31㎡
施工期間 2か月

間取り

BEFORE 1LDK

AFTER 2LDK+外構他

お問い合わせ先

明和地所株式会社

〒150-8555 東京都渋谷区神泉町9-6 明和地所渋谷神泉ビル

TEL:080-4050-6406

リノベーション事例一覧に戻る