リノベーション事例

2025.09.19

「家の形」から美しく整える、からだと暮らし

  • 関西
  • 戸建
  • 中古を買ってリノベーション
  • 二人暮らし
  • 家全体
  • 水まわり
  • 居室・その他

物件探しの条件は、「眺めの良さ」「開放的」「人目が気にならないこと」の3つ。さらに、「猫と暮らす」「暖炉のある暮らしを楽しむ」といった理想の暮らしを叶える条件も満たす物件と出会い、購入を決めました。「年齢的にも、今後は引っ越しをせず、ここで定住したい」というおふたりの想いを受けて、リノベーションでは将来にわたって快適に暮らせる空間づくりを意識。お二人の身長も考慮した上で、キッチンや洗面は一般より少し高めの90cmに設定。腰への負担を軽減するなど、暮らしやすさにも細やかな配慮を施しました。

「やりたいことを叶えたい」、そして「困りごとを解決したい」。この2つはリノベーションを考える上での最初のきっかけであり、最大のミッションです。
この戸建て事例では、「新婚旅行で訪れたアジアのリゾートをイメージした空間にしたい」「猫と暮らしたい」という2つのやりたいこと、そして「腰への負担ができるだけ少ない設計にしたい」というお困りごとの解決に取り組みました。特に、腰の痛みを抱えているなど「現在進行形」のお困りごとは、長いスパンでさまざまな条件を検討して、最適解をみちびきだす必要があり、コーディネーターの腕の見せ所です。
「たとえば棚や天板の高さ、といった毎日の家事スペースの使いやすさは人それぞれ。だから建売住宅では細かい希望を叶えるのは難しいと感じていました。そんな “困りごと”を解決して、ふたりの“やりたいこと”を盛り込む方法を考えたら、リノベーションにたどり着きました」と施主様は振り返ります。
ご夫婦ともリモートワークで在宅時間が増えたことから、すべてのお部屋に杉の床材やカーペットを採用して、腰への負担をやわらげる仕様としました。「寝室のカーペット床はホテルのような贅沢感で、リラックス度も高まります」と奥様は仕上がりに大満足。ずっと住み続けるからこそ、飽きのこないシンプルさを重視したリノベーションで、からだにやさしく豊かな気持ちで暮らせる家が完成しました。

費用 1820万円(税込) 物件種別 一戸建
リノベーション
形態
中古を買ってリノベーション 家族構成 二人暮らし
築年数 23年 面積 82.70㎡
施工期間 3ヵ月

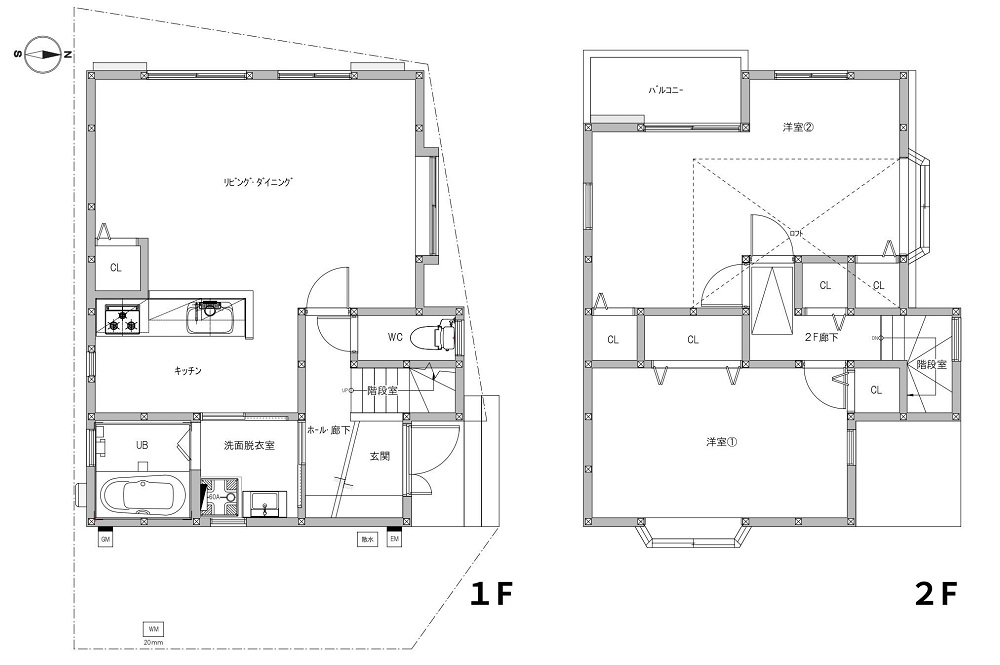
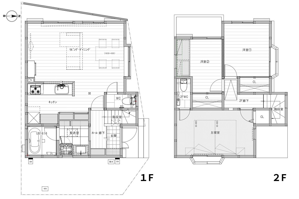
間取り

BEFORE 2LDK

AFTER 3LDK

お問い合わせ先

G-FLAT株式会社

〒650-0012 兵庫県神戸市中央区北長狭通4-3-24

TEL:0120-303-056

リノベーション事例一覧に戻る