リノベーション事例

2025.09.19

開放感と眺望が調和するリノベーション

  • 首都圏

明和地所株式会社

LDKと洋室が窮屈に感じられ、開放感に欠けていた。 寝室のウォークインクローゼットは使いづらさがあった。 窓から望む東京タワーの眺望はこの住まい最大の魅力であり、それをもっと活かしたいと感じていた。

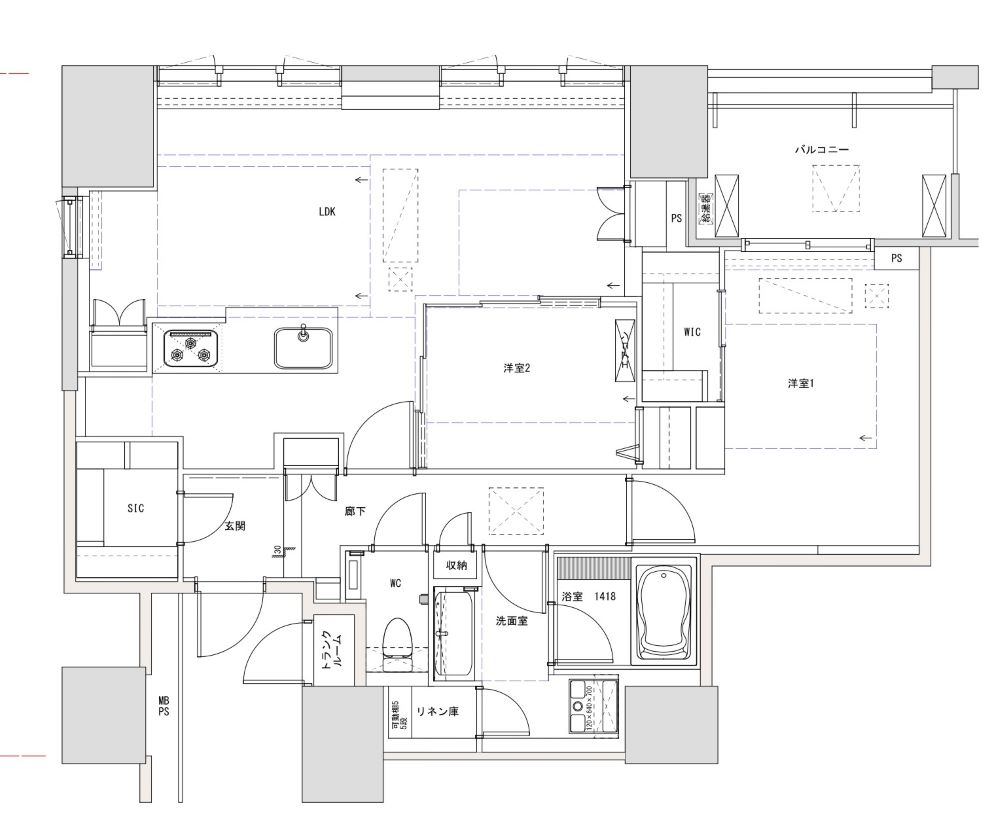
• 間取りを3LDKから2LDKへ変更し、広々としたLDKを実現。
• 東京タワーを正面に望めるようにレイアウトを工夫し、眺望を日常に取り込んだ。
• 寝室は形を整え、新たにウォークインクローゼットを設け、収納力と使いやすさを向上。
• ペルソナは**独身男性またはDINKs(共働き夫婦)**を想定。LD横にはガラス建具で仕切れる洋室を設け、多様なライフスタイルに対応できる柔軟な空間とした。

費用 1440万円(税込) 物件種別 マンション
リノベーション
形態
リノベーション済み物件 家族構成
築年数 11年 面積 76.94㎡
施工期間 3か月

間取り

BEFORE 2LDK

AFTER 2LDK

お問い合わせ先

明和地所株式会社

〒150-8555 東京都渋谷区神泉町9-6 明和地所渋谷神泉ビル

TEL:080-4050-6406

リノベーション事例一覧に戻る