リノベーション事例

2025.09.19

お料理から読書までキッチンで過ごす特別な空間

  • 首都圏
  • 家全体
  • 水まわり
  • 居室・その他

明和地所株式会社

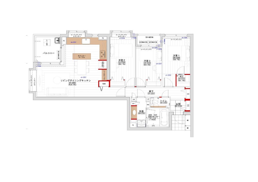
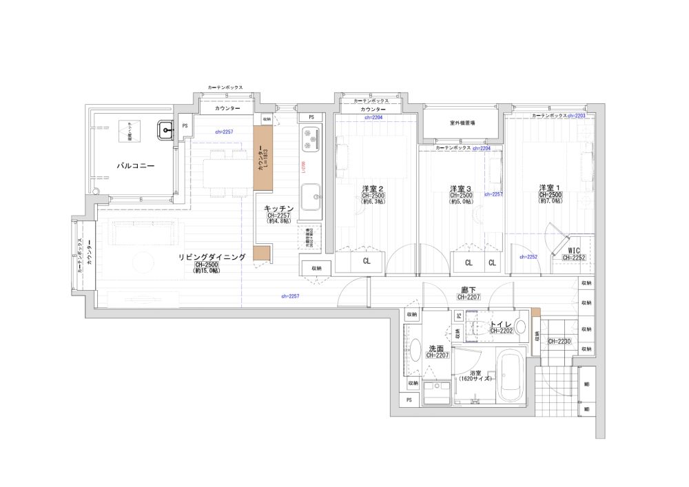
リノベーション前は、独立キッチンでダイニングとキッチンの間に壁があり、
ダイニングテーブルを置くにも窮屈さを感じるダイニングスペースでしたが、
壁面を大胆にキッチンにする事により幅2990×1390と何を作るにもスペース十分なL型キッチンへと変身。
カウンターテーブルをダイニングテーブルとの間に設けた事でキッチンとの間仕切りの役目にもなっている。
単に広いリビングダイニングではなく、家族とのコミュニケーションが取りやすい環境です。

お料理から読書までキッチンで過ごす特別な空間


リノベーション前は、独立キッチンでダイニングとキッチンの間に壁があり、
ダインぐテーブルを置くにも窮屈さを感じるダイニングスペースでしたが、
壁面を大胆にキッチンにする事により幅2990×1390と何を作るにもスペース十分なL型キッチンへと変身。
カウンターテーブルをダイニングテーブルとの間に設けた事でキッチンとの間仕切りの役目にもなっている。
単に広いリビングダイニングではなく、家族とのコミュニケーションが取りやすい環境です。

費用 1550万円(税込) 物件種別 マンション
リノベーション
形態
リノベーション済み物件 家族構成
築年数 24年 面積 87.20㎡
施工期間 2か月

間取り

BEFORE 3LDK

AFTER 3LDK

お問い合わせ先

明和地所株式会社

〒150-8555 東京都渋谷区神泉町9-6 明和地所渋谷神泉ビル

TEL:080-4050-6406

リノベーション事例一覧に戻る