2025.09.19
株式会社a-tech
 
                                中目黒の川沿いに建つこの物件は、長年の時を経てきた築年数の古い建物。しかし、その最大の魅力は、春になると窓から一望できる壮麗な桜並木にある。
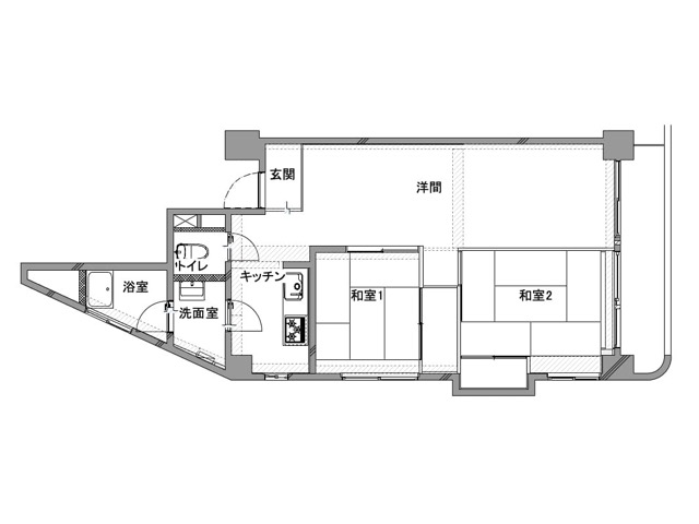
一方で、リノベーションを考える際には、いくつかの課題が存在した。特に、水回りの状況は複雑だった。既存の浴室は、一般的なユニットバスではなく、昔ながらの在来工法で造られており、さらに珍しい三角形の形状をしていた。このユニークな形状は、新たなユニットバスの導入を難しくする要因となった。また、壁の中ではなく、配管がそのまま露出している給水・給湯配管も、デザイン面で工夫が必要でした。
さらに、生活の中心となるキッチンの改修も、慎重な計画が求められた。キッチンのレイアウトを変更し、新たな場所へ移設する場合、コンクリート壁に大きな穴を開けるコア抜き作業が必要となり、建物の構造や既存の設備状況を詳細に確認することが重要だった。
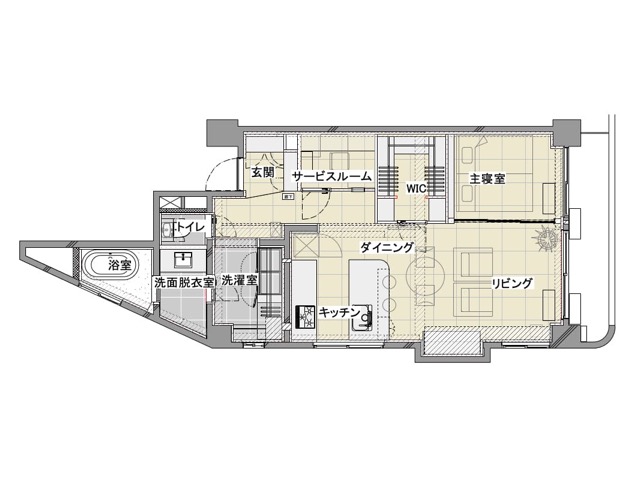
この住まいは、住まう人のライフスタイルに寄り添うオリジナル造作家具をふんだんに取り入れ、洗練されたジャパンディスタイルを空間化しています。
リビングには、読書などを楽しめる最適な造作ヌックを設けました。これは単なる窪みではなく、居心地の良さを追求したパーソナルスペースでありながら、空間全体にアクセントとなるデザインが特徴です。キッチンでは、機能と美を兼ね備えた造作キッチンを採用。その腰壁には陰影が美しいリブパネルをあしらい、ジャパンディ感を引き立てます。キッチンの天板は人工大理石製で、広々とした作業スペースとしてだけでなく、軽食やコーヒーを楽しむカウンターとしても使えるように設計されており、多目的な使い方が可能です。
プライベート空間にも造作のこだわりは続きます。主寝室には、空間に落ち着きと統一感をもたらす造作のヘッドボードを設けました。水回りでは、造作の洗面カウンター、玄関には造作の玄関収納を設けることで、限られたスペースを最大限に活用しています。
これらの造作家具は、単なる収納や機能を超え、ジャパンディスタイルを両細立させながら、住まいに唯一無二の個性を与え、日々の暮らしをより豊かに彩ります。
| 費用 | 2000万円(税込) | 物件種別 | マンション | 
|---|---|---|---|
| リノベーション 形態 | 中古を買ってリノベーション | 家族構成 | 二人暮らし | 
| 築年数 | 53年 | 面積 | 61.49㎡ | 
| 施工期間 | 6ヶ月 |