リノベーション事例

2025.09.19

Reptile House

  • 九州・沖縄
  • マンション
  • リノベーション済み物件
  • ファミリー
  • 家全体
  • 水まわり
  • 居室・その他
  • 断熱改修

有限会社ひまわり

地場ディベロッパー分譲中古マンションを買取再販業者がリフォームして販売されていた区分所有マンション一室。立地や築年数以外はお施主様の希望条件に合致せず、こだわりを受け止めるリノベーションがスタート。公園至近の立地を切望されていた理由が打合せで明らかになっていく。。。

お施主様の子供が愛する「爬虫類」が家族の絆を繋ぎ、話題の中心にあることを象徴的モチーフに据えました。城の石積みも好きで忍者屋敷のような扉も希望されていたため、爬虫類の鱗、城の石積みを模したデザイン壁を採用。目地が複雑な造作建具や壁は1㎜単位のCAD図面、実物大モックアップを経て職人の手で形に。仕上げの塗装の一部はお施主様家族全員参加で、空間とともに思い出を刻みました。
建物横の公園緑や光を室内に取り込むべく、玄関土間や水廻りからバルコニーまで視線の抜けと動線を連続させています。爬虫類のメンテナンスができる玄関土間や書斎など個の領域がシームレスにつながり、壁上部を開放することで家族の気配と明るさが感じられます。洗面・浴室・WICは回遊動線とし、大判ステンレス天板の造作テーブルは勉強や作業・団らんを兼ねる場とするなど機能も検討を重ねています。鋼管やレトロスイッチなどの工業的ディテールと、無垢材や造作建具の質感を強調させるために通常は隠される木口や積層面をあえて見せる仕上げを採用しました。
買取再販物件だったため、更新済みの設備機器は売却し、床や天井の使える下地は再利用するなど環境負荷とコスト抑制にも配慮。一部塗装作業を共同で行い、将来の造作に備えた下地を施すなどリノベーション特有の住まい創りの体験と、持続可能性と家族の物語を同時に育むリノベーションを実現しました。

費用 2000万円(税込) 物件種別 マンション
リノベーション
形態
リノベーション済み物件 家族構成 ファミリー
築年数 22年 面積 81.62㎡
施工期間 3ヶ月

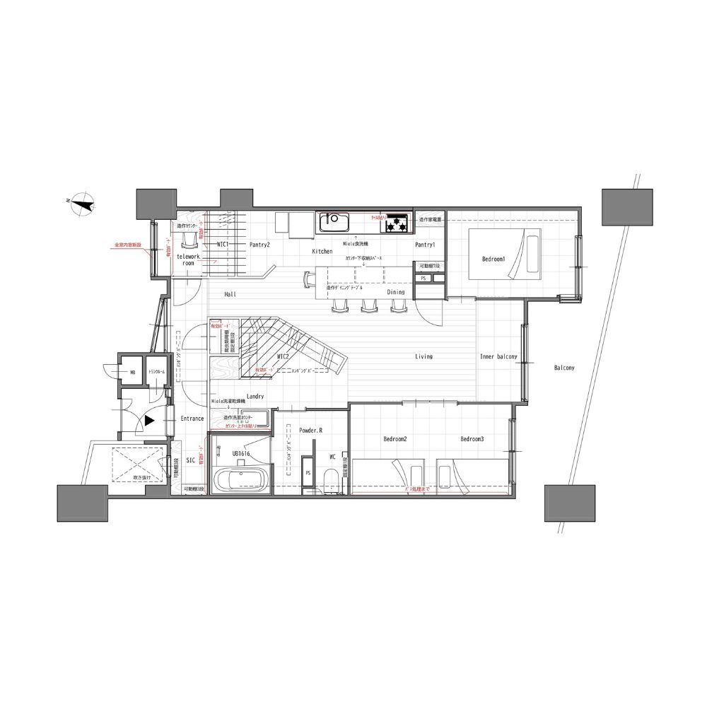
間取り

BEFORE 4LDK

AFTER 2LDK+R

お問い合わせ先

有限会社ひまわり

〒802-0061 福岡県北九州市小倉北区三郎丸3-14-22 石橋ビル3F

TEL:093-922-6438

リノベーション事例一覧に戻る