リノベーション事例

2025.09.19

北海道の暮らしを守る断熱・換気

  • 北海道
  • マンション
  • 持ち家をリノベーション
  • ファミリー
  • 家全体
  • 水まわり
  • 居室・その他
  • 断熱改修

札幌アポロ株式会社

ご家族4人で暮らすのは、1階のマンションの一室だ。相談会で最初に口にされたのは「寒さ」への不安であった。
床から冷気が上がり、暖房のない個室もあり、室内で温度差が大きく、北海道の厳しい冬では快適とは言えない状況だった。
もともと暖房がなかった個室は将来的に子ども部屋として使いたいという希望があり、断熱や換気の改善は最重要課題とされた。
また、1階のため防犯上窓を開け、換気は出来ず、窓を閉じたままでも効率的に空気を循環させ、快適な温熱環境を保てる計画が求められた。

さらに、洗濯物を干すスペースが限られていたことから、リビングが物干し場となり、冷蔵庫横や正面にはキッチン用品が並ぶなど、収納力の不足も大きな課題となっていた。
衣類専用の部屋があるほど、衣類の多さもこの暮らしの特徴のひとつであった。

この住まいで最も懸念されていた寒さには、床下の断熱材施工や窓面内壁への断熱吹付、さらに断熱サッシへの交換といった断熱対策でしっかりと対応した。
もともと暖房設備のなかった部屋は、子ども部屋としてそれぞれ使用できるよう個室化したが、各部屋の広さがコンパクトであることから、暖房は1台で2部屋を効率よく循環させる計画とした。
具体的には、各部屋を隔てる壁にパイプファンを設置し、空気を循環させることで温度ムラを抑制。さらに外壁側には熱交換システムを導入した為、冬は外気を温めて取り込み、夏は冷気として取り込める仕込みとした。
これにより、窓を開けずとも一年を通して快適な温熱環境が保たれ、家族全員がどの季節でも安心して過ごせる住まいが実現した。

さらに、家族の衣類をまとめて収納できるウォークインクローゼットを新設し、洗濯物は寝室中心に干せるよう改善。リビングもすっきり整い、広さと収納力を兼ね備えたキッチンにはパントリーを設置し、家事がより快適になった。ホールの可動棚や造作カウンターも活用し、在宅作業や日用品整理がしやすくなった。家族の思い出や暮らしが空間に映し出され、便利さと快適さを兼ね備えた、あたたかく居心地の良い住まいとなった。

費用 1300万円(税込) 物件種別 マンション
リノベーション
形態
持ち家のリノベーション 家族構成 ファミリー
築年数 32年 面積 70.45㎡
施工期間 3か月

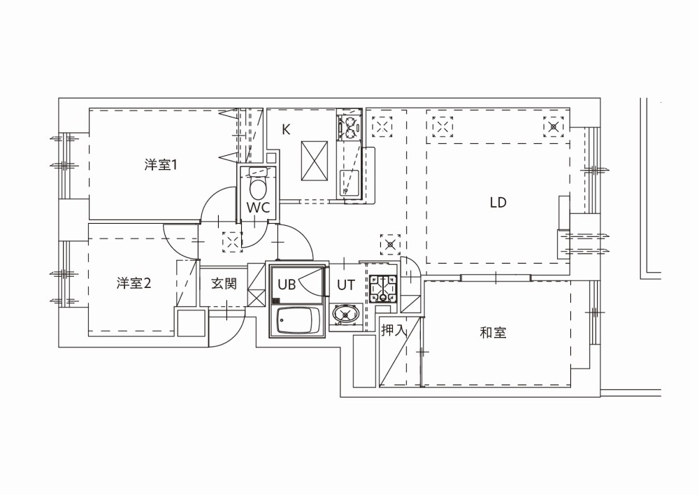
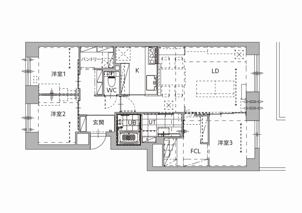
間取り

BEFORE 3LDK

AFTER 3LDK

お問い合わせ先

札幌アポロ株式会社

〒064-0805 北海道札幌市中央区南5条西10-1015

TEL:011-299-3786

リノベーション事例一覧に戻る