リノベーション事例

2025.09.19

リノベで誘う地方居住

  • 九州・沖縄
  • マンション
  • リノベーション済み物件
  • 家全体
  • 水まわり
  • 居室・その他
  • 断熱改修

有限会社ひまわり

住宅不足を背景に効率的に企画販売された既存間取りは、海峡目前という稀有な立地とは対照的に狭く暗いリビングダイニングや廊下と玄関が印象的だった。高齢化率が政令指定都市で全国トップの地方都市だからこそ落ち着いた住宅価格であり、国全体で人口が減少する今こそ、「定住人口」は増やせなくても、二地域居住したくなるような、対岸で建設中の大手リゾートホテルの一室に泊まるとは別の価値を創出するリノベーションを目指した。主な生活拠点とは別の生活拠点をもうける暮らし方である「二地域居住」など多様なライフスタイルの視点のきっかけを本リノベーションが担う壮大なプロジェクトと位置付けた。

1日700~1000隻行き交う船を臨む関門海峡の港町「門司港」。バルコニーから海峡に触れそうな地方都市ならではの稀有なロケーションのマンション一室の買取再販リノベーション。築35年超の既存住宅が新車価格以下で流通する地方都市の現実に対し資産価値を再構築し、地域ストックの再生モデルを示すことを目的とした。

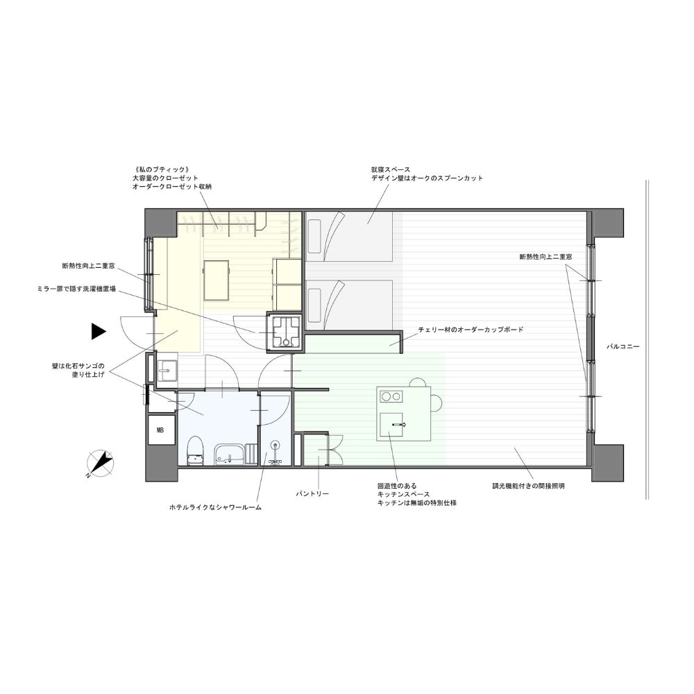
海峡両岸で観光再開発が進行しており、短期滞在だけではなく二地域居住の受け皿としても寄与する計画とするため、従来は海峡に面していなかったリビングダイニングと寝室を海峡側へ再配置しスイートルームを思わせる抜け感と快適な動線でベッド上から海峡と対話出来る空間とした。
塗壁と建築化照明、無垢材など素材とディテールで質感を高めつつ、給排水管や断熱材、二重遮音床の更新、Low-E二重窓新設といったインフラ改修を施し意匠と性能を両立。ブティックライクの造作クローゼットや水廻りは二拠点として所有する悦び・ゲストを招きたくなる空間とした。

本リノベーションは地方都市の住宅ストックを単なる住まいとしてではなく、本宅からウィークエンドハウス、セカンドハウス、創作活動拠点といった多様な用途へと展開しうる柔軟な住まいとして再定義。地方への人の流れの創出・拡大を図り、新たな価値と可能性を創出する前衛的な買取再販リノベ邸宅が、歴史と風景に抱かれた港町「門司港」に誕生した。

費用 2000万円(税込) 物件種別 マンション
リノベーション
形態
リノベーション済み物件 家族構成 その他
築年数 37年 面積 68.67㎡
施工期間 3ヶ月

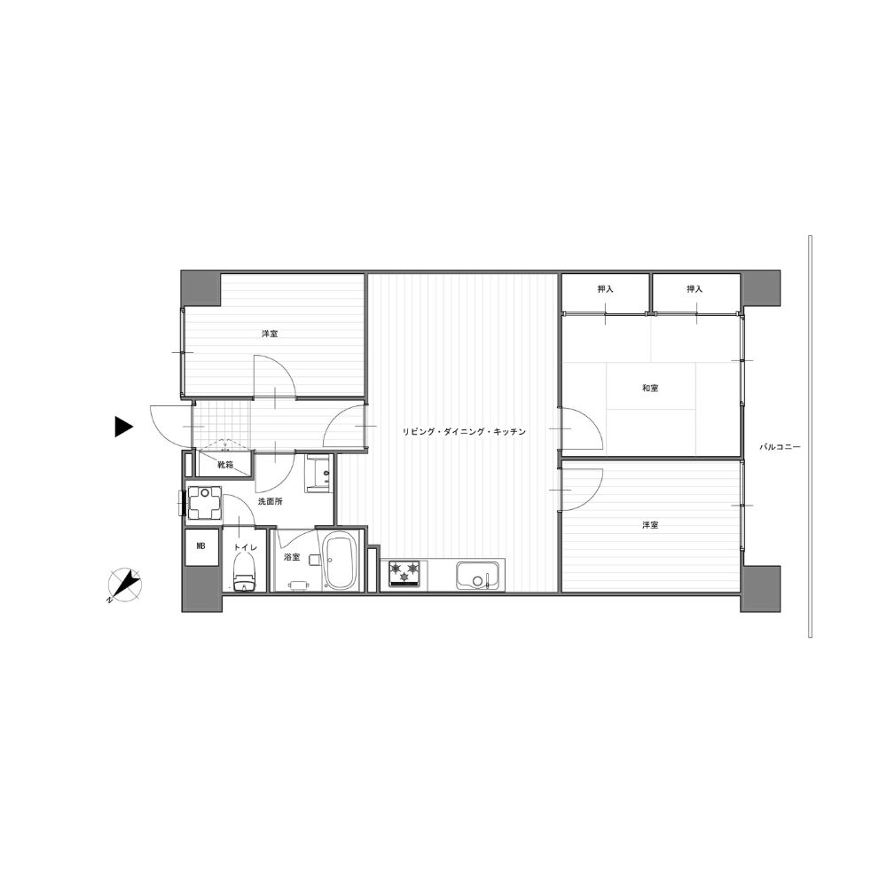
間取り

BEFORE 3LDK

AFTER WIC+スイート

お問い合わせ先

有限会社ひまわり

〒802-0061 福岡県北九州市小倉北区三郎丸3-14-22 石橋ビル3F

TEL:093-922-6438

リノベーション事例一覧に戻る