リノベーション事例

2025.09.19

躯体から生まれた曲面天井

  • 関西
  • マンション
  • 中古を買ってリノベーション
  • 二人暮らし
  • 水まわり
  • 居室・その他
  • 断熱改修

半世紀前に建てられたビンテージマンション。オーナーはビンテージマンションの佇まい、窓からの眺望を気に入って購入された。
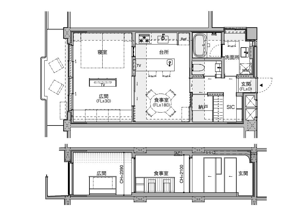
間口が広く、南側に大きな開口部があるのが特徴的な躯体である。
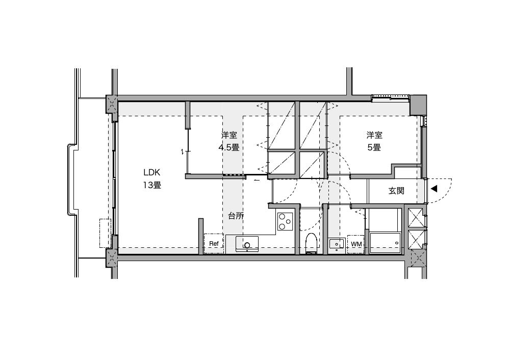
分譲時に一度リフォームされており、購入時の間取りは2つの個室と13畳のLDKだったが、躯体を考慮していない間取りになっていたため、梁の下端に合わせて天井が貼られていて、各部屋が均一な印象を受けた。
性能面では、窓のアルミサッシはシングルガラスで、断熱は北側の壁面の一部に薄い断熱が施されている程度だった。

セカンドルームとしてのマンション改修の計画。決して広くはない17坪のマンションの一室を、既存の躯体を生かすことで変化に富んだ豊かな空間へと再構築することをテーマとした。既存の躯体は扁平梁が四周に回り、中央にも長辺方向の梁に対して2本の梁が架かっていた。マンションの改修に伴い必ず現れる梁をいかに活かすかが、この改修の重要なポイントとなった。プランは梁の位置に合わせて、空間を三等分している。手前に水廻りと納戸、中央に食事室と台所、奥に広間と寝室という構成である。広間兼寝室は天井裏と床下に配管をなるべく通さず、天井高を最大限に広げることで天井高が均一になりがちなマンションの改修においても、空間の広がりを感じられるよう工夫した。また、天井を極限まで高くしたことで現れる梁を、曲面の天井で自然に隠し、梁と曲面天井の間にできた空間を配管スペースとした。壁から天井まで一続きに塗られた漆喰の壁には、日中は障子から差し込む淡い光がやさしく映え、夜間は固定棚に仕込んだ間接照明やブラケット照明の光が壁面を柔らかく照らし、壁と天井の境界を曖昧にしている。また、空間に変化をもたらすために、障子は上部が下がる猫間障子を採用し、広間と食事室の間仕切りには可動式のルーバー戸を設けることで、さまざまなシーンに対応できるようにした。光や天井高さの変化によって、17坪以上の広がりが感じられる空間を実現出来たように思う。

費用 3200万円(税込) 物件種別 マンション
リノベーション
形態
中古を買ってリノベーション 家族構成 二人暮らし
築年数 47年 面積 56.70㎡
施工期間 4ヶ月

間取り

BEFORE 2LDK

AFTER 1LDK

お問い合わせ先

A design office

〒177-0042 東京都練馬区下石神井6-22-2 プレステージ石神井Ⅱ 302

TEL:03-6337-7500

リノベーション事例一覧に戻る