2025.09.19
株式会社a-tech
 
                                三軒茶屋駅から徒歩1分という好立地にあるこの物件は、5年前にリノベーションが施されており、既存の状態は非常にきれいだった。
前の住人が大切に使ってきた証として、コンロやブラケットライトなどのアイテムをそのまま転用し、新たな空間の一部として蘇らせようと計画。また、浴室は既存のものをそのまま活かして内装に費用を回そうと考えた。
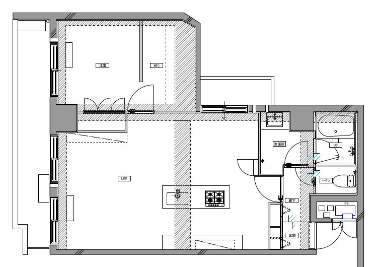
この住まいのLDKは、カウンターキッチンがコミュニケーションを生む暮らしの中心を形成、さらにワンルーム使いとすることでライフスタイルに柔軟に対応できる可変性を持たせています。床のヘリンボーンフローリングが上質さと広がりを与え、天井のコンクリート現しは力強いミニマリズムを、テレビ壁のリブパネルは質感豊かなアクセントを、そして造作ガラス扉は光と視線を繋ぎつつ空間を緩やかに区切ることで、機能美とデザイン性が融合した豊かな「間」を創造しました。一方、主寝室は、足元に温かいフローリング、天井には柔らかなラワン合板、そしてベッド背面の木パネル貼りが上質さと安心感を演出することで、心身が安らぎ、深く落ち着けるプライベート空間となるよう設計されています。
| 費用 | 1500万円(税込) | 物件種別 | マンション | 
|---|---|---|---|
| リノベーション 形態 | 中古を買ってリノベーション | 家族構成 | 一人暮らし | 
| 築年数 | 0年 | 面積 | 53.78㎡ | 
| 施工期間 | 3 |