リノベーション事例

2025.09.18

宴のある日常

  • 信越・北陸
  • 戸建
  • 持ち家をリノベーション
  • ファミリー
  • 家全体
  • 耐震補強
  • 断熱改修

株式会社モリタ装芸

新潟県小千谷市の高床式2階建て住宅。一階がガレージ、二階が住居の建物である。周囲が開けており採光上の問題は無いが、通りに面しておりプライバシーと解放感のバランスが重要であった。約10年前に中古物件として購入したが、2005年新築で比較的新しく状態も良いため、ほぼそのままで暮らしてきた。今回の改装で、LDKを広いワンルームと吹き抜けにするため、断熱改修が必須であったが建物形状がシンプルだったため効率よく進められた。現状の家の良い点と改善点をご自宅でママ友を交えた、たこ焼きパーティーのテーブル上に図面を広げてご提案していた時には、この家の完成形が見えはじめていた。完成後、施主様より「格好つけずそのまんまの自分たちや家の様子を伝えられたので、家族にとって本当に居心地が良く住んでから後悔のない家になった」といただいた。「宴のある日常」は急にはじまったものではなく、こちらも継承するものであった。

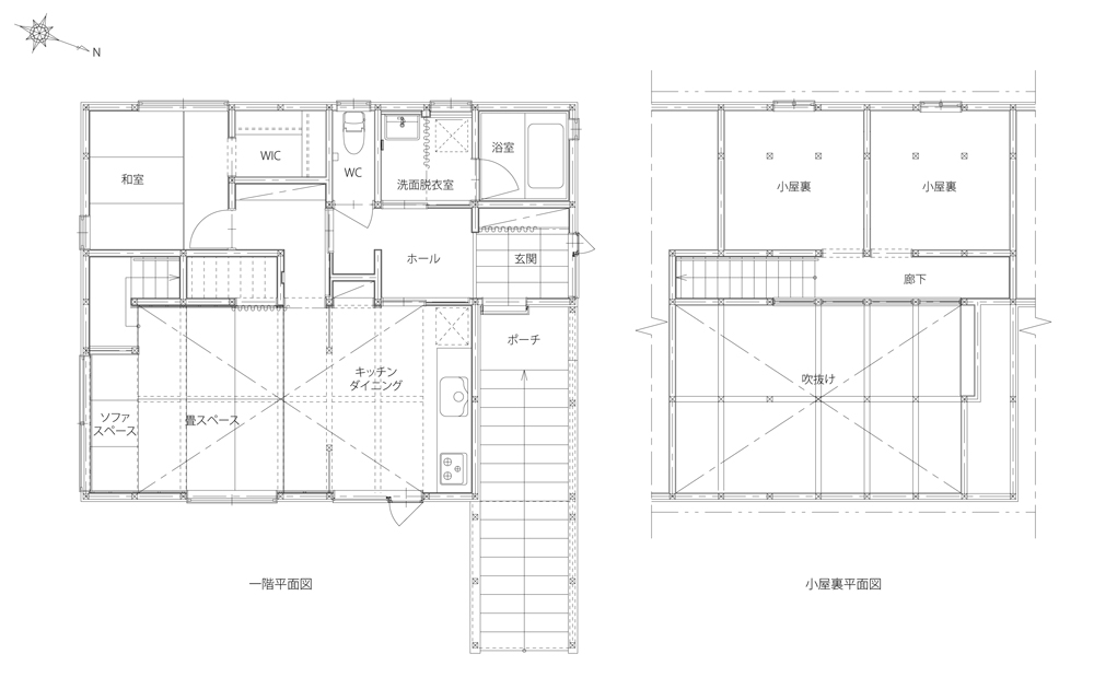
「大勢の友人を招いて宴会ができる家にできますか?」そんな思いからはじまったリノベーション。昼間は友人の子供たちが学校終わりに遊びに来ることが多く、子供たちの親である友人たちとは、お互いの家を行き来する素敵な交流があり、夕暮れからはお礼も兼ねての食事会が日常的にあった。ただ、改装前の仕切られた空間では大勢を招くことが困難であった。この中古住宅を購入して約10年、そのままの間取りで暮らしてきたが、徐々に不満が増えていった。そこで延床18坪の限られた空間で、子も親も思い思いの時間を過ごすことができるか検討していった。もちろん日常的に家族が快適に暮らすことも踏まえて。まず、LDKの間仕切り壁を取り払い、天井を抜いて小屋裏空間をつくり、子供たちの目が届くようにしつつ断熱改修を施した。同時に畳スペース、造作ソファのあるヌックも計画し、今までになかった居場所が点々と生まれた。LDKは高床二階なので、窓の位置を高くすることでプライバシーを確保しつつ、カーテン不要で常に山々と空を眺めることができる。近年、物騒な事件や炎天下による熱中症など、子供たちが外で遊ぶ機会が少なくなる中、安心して成長を見守り、大人たちも交流を深められる場が求められてきている。時に託児所であり、情報が集まる公民館であり、居酒屋でもある。訪れる人がまるで自分の家のように、居心地よく過ごせるこの場所は今日もきっと笑顔で溢れている。

費用 1702万円(税込) 物件種別 一戸建
リノベーション
形態
持ち家のリノベーション 家族構成 ファミリー
築年数 21年 面積 61.31㎡
施工期間 4ヶ月

間取り

BEFORE 1LDK

AFTER 1LDK

お問い合わせ先

株式会社モリタ装芸

〒950-0951 新潟県新潟市中央区鳥屋野4-18-10

TEL:025-284-3558

リノベーション事例一覧に戻る