リノベーション事例

2025.09.18

十字壁の家

  • 信越・北陸
  • 戸建
  • 持ち家をリノベーション
  • 二世帯・三世帯
  • 水まわり
  • 居室・その他
  • 断熱改修

株式会社モリタ装芸

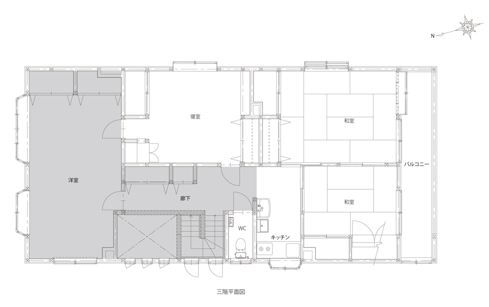
若い世帯が祖母の暮らす家に移住する二世帯住宅。一階がガレージで、二階に祖母が暮らしており、今回は三階を部分的にリノベーションする計画であった。南側は庭に面しているため明るく開放的であったが、東側はアパートとの間隔が狭い上に窓の位置が干渉しており採光が期待できない。西側は元々窓が少なく、現況を活かした改装のため採光がとれない状況であった。南側の採光が部屋の奥まで届くように、間仕切り壁を取り払い広いワンルームにする必要があった。ただ、新潟の冬はとても寒く、夏も年々平均気温が上昇している。現状の性能では不安が大きかったため、三階ワンフロアをゾーン断熱することで問題を解消していった。直下に祖母の暮らすリビングがあるため、床の断熱が防音材としても一役買っている。仲のいい祖母と孫がお互いにいい距離感を保ちつつ、「住み慣れた家」の良さと「移住」という変化のバランスを考慮した計画が必要であった。

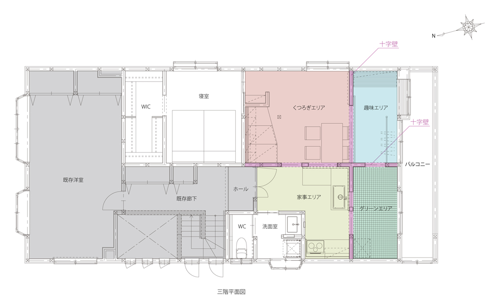
新潟県長岡市、高床式3階建ての二世帯住宅。若い世帯が暮らす3階部分、延べ床60㎡のコンパクトな部分リノベーション。LDKで観葉植物を育て、趣味の刺繍を楽しみ、家事に集中もできて、夫婦と子供の3人でくつろげる居場所が欲しい。床面積に限りがある場合、一般的には間仕切りを取り払い開放的な空間に刷新することが多い。しかし、このお家はあえて間仕切りをつくり「グリーン、趣味、家事、くつろぎ」の4エリアで構成した。4つの隣り合う空間はそれぞれの役割りを越境し合う。観葉植物を育てる「グリーンエリア」には冷蔵庫や食器棚も置かれ、刺繍をする「趣味エリア」には観葉植物も置かれ、物干しもできる。料理をする「家事エリア」ではコーヒーを淹れてくつろぐこともでき、レコードから流れる音楽を楽しむ「くつろぎエリア」では物干しをたたみつつグリーンを眺められる。「十字壁」はエリアを制限するためにつくったが、開口部から隣り合う部屋が路地裏のように見え隠れし、また役割りを越境することで自由を生むきっかけになっている。そこに家族の暮らし方や使い勝手が二重三重と折り重なり、面積以上の解放感を感じさせてくれる。「壁」をつくることが目的になると、空間は仕切られ狭く感じる。壁を「境」としてとらえると、越えた分だけ可能性が広がる。年月と共に用途や使い方も変化していくが、十字壁はその時々の暮らしに寄り添うように家族の思い出を築いていく。

費用 1496万円(税込) 物件種別 一戸建
リノベーション
形態
持ち家のリノベーション 家族構成 二世帯・三世帯
築年数 35年 面積 60.42㎡
施工期間 4ヶ月

間取り

BEFORE 3K

AFTER 1LDK

お問い合わせ先

株式会社モリタ装芸

〒950-0951 新潟県新潟市中央区鳥屋野4-18-10

TEL:025-284-3558

リノベーション事例一覧に戻る