リノベーション事例

2025.09.18

祖父母のテーブルを受け継ぐ家

  • 北海道
  • 家全体
  • 水まわり
  • 居室・その他
  • 屋外
  • 断熱改修

札幌アポロ株式会社

初めてのご相談から4、5軒の物件を内覧した中で出会ったのが、カーポートと車庫を備えた一邸だ。雪深い冬でも車を守り、趣味のキャンプ道具も直接搬入できる車庫は“秘密基地”のような存在だった。広い庭もあり、植物を育てることが好きなお客様に理想的な環境で、リビングから眺める緑は豊かな暮らしのイメージを生み出した。
玄関内に足を踏み入れると、木パネルと木製手摺の存在感が際立ち、1階ホールの階段の壁面が床から天井まで木パネルで覆われ、住まいの雰囲気を決定づけていた。
さらに1階に本を読んだりゆったり過ごせる小上がりスペースをつくれる十分な広さもあった。
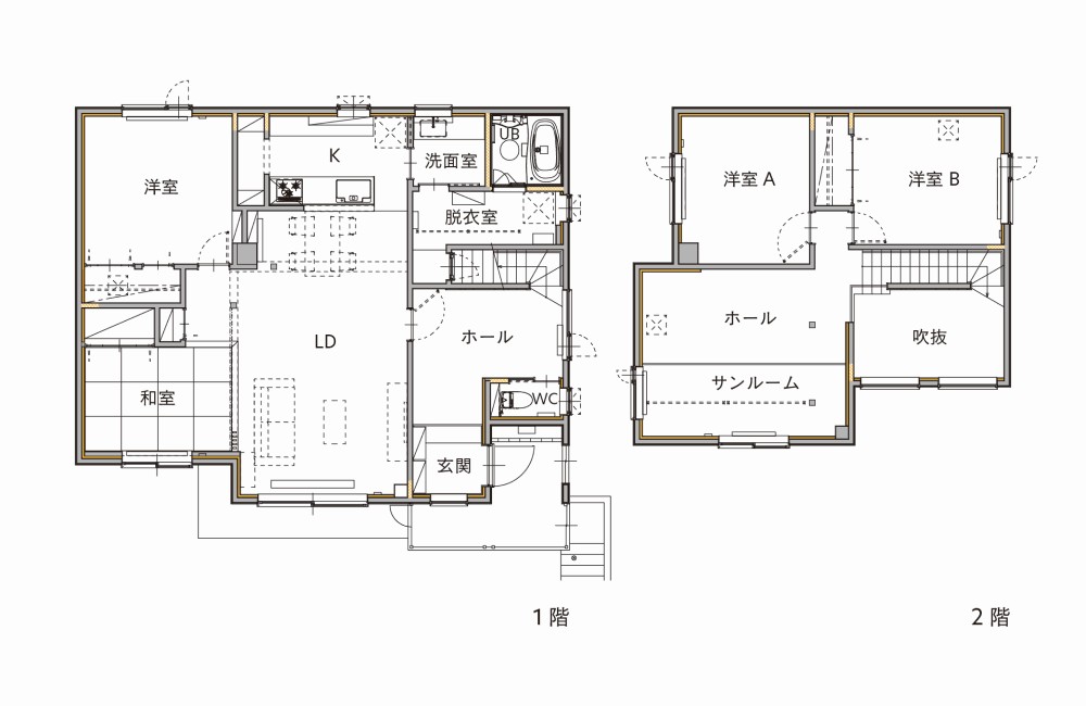
しかし、独立キッチンや個室で細かく仕切られた間取りにより薄暗く、空間のつながりが乏しい課題もあった。
こうした魅力と課題を踏まえ、お客様はリノベーションで理想の住まいを実現できると確信したのだ。

リノベーション後の住まいは、古いものと新しいものが自然に融合し、過去の記憶と現代の暮らしがやさしくつながる空間へと生まれ変わった。

祖父母の家にあった思い出のダイニングテーブルは、玄関の“敷台”として住まいの顔になっている。床下に断熱材を施工したことで1階フロアの上がり高さが高くなり、玄関から上がるのが大変だと感じたため、敷台を設置することを提案したところ、お客様から祖父母のテーブルをリメイクして使用したいというご希望があり、設置が実現した。

さらに、階段に面した木パネルや木製手摺も既存のものを活かしたことで、玄関まわりは時間の記憶や想いを受け継ぐ、ぬくもりに包まれた空間となった。

課題だった独立キッチンや個室で細かく仕切られた間取りは、空間のつながりを意識し、家全体が明るく開放的になるよう、キッチンは独立型から対面型に変更し、リビングとのつながりを意識した配置に。さらに、もともと1階リビングに続く個室は小上がりに変更し、扉を設けずオープンにすることで、空間に広がりと明るさを生み出した。

植物が好きなお客様のため、リビングだけではなくダイニングからも広い庭を眺められるようにした。さらに、2階には植物を育てたり、レールに吊るして小物を飾ったりできるフリースペースを設け、暮らしに彩りと遊び心を添えた。

費用 2800万円(税込) 物件種別 一戸建
リノベーション
形態
中古を買ってリノベーション 家族構成
築年数 42年 面積 158.55㎡
施工期間 5か月

間取り

BEFORE 5L+DK

AFTER 3LDK+小上り

お問い合わせ先

札幌アポロ株式会社

〒064-0805 北海道札幌市中央区南5条西10-1015

TEL:011-299-3786

リノベーション事例一覧に戻る