リノベーション事例

2025.09.18

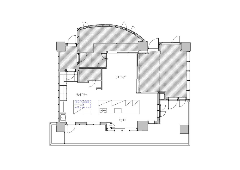
301住戸:ゆるやかにつながるLDK空間

  • 関西
  • 水まわり
  • 居室・その他

大阪ガスマーケティング株式会社

元のレイアウトはユーティリティ、キッチン、LDの3部屋にそれぞれ独立して構成されていました。コの字型のキッチンからは小さな開口がありLDへの視線は確保されているものの空間としてのつながりとしては限定的でした。インナーバルコニーからの光は間仕切りによって遮断され、住戸としての能力が十分発揮出来ていないように感じました。薄暗く窮屈な印象の払拭を皮切りに、生活者がより家族とのつながりを感じて過ごしてもらえるようなLDK空間を備えることと、家事動線をよくすることを目指し部屋全体のレイアウトと機能を盛り込むプランニングを行いました。

NEXT21は、近未来の都市型集合住宅のあり方について、環境・エネルギー・暮らしの面から実証、提案することを目的に1993 年大阪ガスが建設した実験集合住宅です。
時代背景を踏まえ、31年間で200 を超えるプロジェクトを実施。建物全体の省エネ、都市における緑地の復元と環境共生、多様なライフスタイルに応じた住まいのあり方などに関する提案や発表を行ってきました。

本案件は「ゆるやかにつながるLDK 空間」がコンセプト。
「1:共働き世帯の増加による“家事ラク”や“時短動線”、洗濯物の室内干しニーズの増加 2:コロナ禍以降、働き方の多様化や家中での過ごし方が変化」した社会的背景を踏まえ、新しい生活様式の提案・検証を目的にリノベーション致しました。

1:家事ラク需要に伴い設置ニーズが高まっているガス衣類乾燥機「乾太くん」。中古マンションでは排湿筒工事が難しく設置できないケースがほとんどですが、今回ダイニングに洗濯機と乾太くんを含む【ランドリーユニット】を設置。内窓を利用した排湿を行うことで設置の可能性を検証します。

2:それぞれが4つに独立使用できる【可変式テーブルユニット】。ダイニングテーブルやワークスペース、家事作業台など用途に合わせてLDK の好きな場所に移動して活用が可能で、自然とコミュニケーションが増える新しいLDK 空間を創造します。

費用 1200万円(税込) 物件種別 その他
リノベーション
形態
持ち家のリノベーション 家族構成
築年数 32年 面積 36.30㎡
施工期間 2.5ヶ月

間取り

BEFORE LDK+UT

AFTER LDK+UT

お問い合わせ先

大阪ガスマーケティング株式会社

〒541-0046 大阪府大阪市中央区平野町4-1-2 ガスビル3階

TEL:0120-300-101

リノベーション事例一覧に戻る