リノベーション事例

2025.09.17

シン・道の駅 最後の商店が消えた村の、新たな生存戦略

  • 九州・沖縄

paak design株式会社

超人口減少の現実が、この村で決定的な形で訪れた。人口が1000人を切り、村内の商店が減少している。日常の買い物ができなくなるという事態は、村民の生活基盤を根底から揺るがし、コミュニティの存続そのものを脅かす。
舞台となる道の駅もまた、ダム建設による村の移転という歴史の中で生まれた、観光客のための施設。しかし、コロナ禍で観光の形は変容し、その存在意義は揺らいでいた。加えて、真西を向いたファサードから差し込む強烈な西日は、商品を劣化させ、快適性を損なう設計上の大きな負債も抱えていた。村の生命線と観光拠点が同時に失われるこの二重の危機が、村長肝いりの再生計画の出発点となる。

私たちが目指したのは、単なる建物の改修ではない。人口1000人を切った村が、未来へ存続するための、公共インフラの役割そのものをリノベーションすることだった。
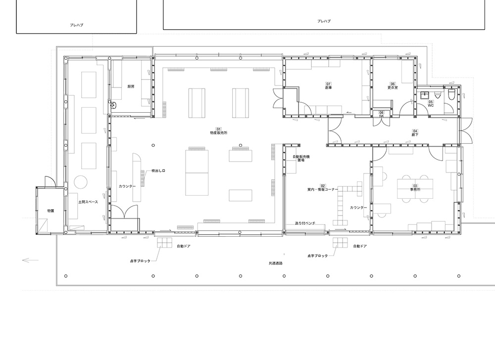
まず、観光客向けだった売り場の役割を再定義。面積を約2倍に拡張し、村民の日常を支えるスーパーマーケット機能を統合した。これにより、道の駅は単なる通過点から、観光客と村民の動線が交差する、村の新たな中心(ハブ)へと生まれ変わった。
この新たな役割を象徴するのが「土着」をテーマとした建築デザインだ。天井には地産の杉材ルーバーが広がり、杉の伸びやかさと力強さで空間を演出。最大の課題であった西日対策として、ファサードには自然石を積層した日除けルーバーを新設した。強烈な直射光を遮りつつ、木漏れ日のような柔らかな光を内部に届けるこの重厚な石のフィルターは、厳しい自然環境と共生してきたこの土地の記憶と、未来へ向かう村の揺るぎない意志を体現している。
村再興のファーストプロジェクトとして再生されたこの場所は、今や村民の生活に欠かせない場所となった。これは、既存の公共施設がアイデアと覚悟で、地域を支える最も重要なインフラになりうることを示す、力強いモデルケースである。

費用 16000万円(税込) 物件種別 その他
リノベーション
形態
その他 家族構成 その他
築年数 22年 面積 233.28㎡
施工期間 6ヶ月

間取り

BEFORE 店舗

AFTER 店舗

お問い合わせ先

paak design株式会社

〒889-2535 宮崎県日南市飫肥5-2-18 2F

TEL:0987-55-0088

リノベーション事例一覧に戻る