リノベーション事例

2025.09.17

「棲み分け断熱」という、暮らし方

  • 九州・沖縄
  • 戸建
  • 持ち家をリノベーション
  • 二人暮らし
  • 家全体
  • 耐震補強
  • 断熱改修

paak design株式会社

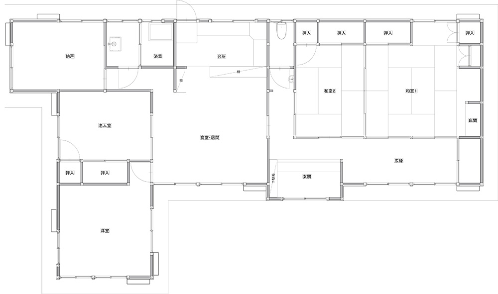
築45年の木造平屋は、細かく仕切られた間取りで日中でも薄暗く、夏は蒸し暑く冬は底冷えする、典型的な昭和の住まいでした。60代からの「終の棲家」として考えた時、冬場のヒートショックや耐震性への不安は大きな課題でした。しかし、国が推奨する高い断熱基準を満たす改修は、大きく解体工事も伴うサッシや外壁工事は莫大なコストがかかります。快適さと安全性は欲しい、でも予算は限られている。そんな相反する悩みを抱えていました。

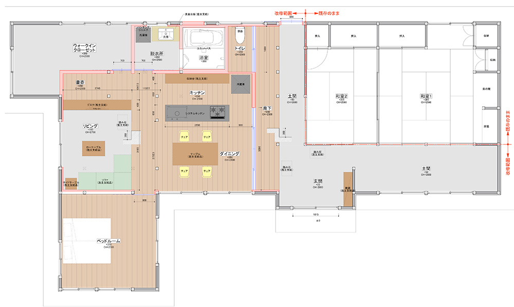
私たちが提案したのは、家全体を魔法瓶のように覆うのではなく、暮らしの中心であるLDKに性能を集中させる「ゾーン断熱」である。耐震補強で安全の礎を築いた上で、壁を取り払い広々としたLDKを創出。このLDKと脱衣所、浴室だけは壁・床・天井に断熱を施し、最小限のエネルギーで健康的な温熱環境を維持できる「シェルター」とした。
一方で、寝室、客間である和室や廊下は、あえて無断熱のままである。春や秋には窓を開け放って家中に風を通し、冬の晴れた日には縁側のように陽の光を浴びる。厳しい季節はシェルターで守られ、心地よい季節は家全体で自然と一体になるのだ。
快適とは、Ua値などが示す温熱性能、すなわち「触覚」の心地よさだけで成立するものではない。むしろ、視覚、聴覚、嗅覚といった他の五感がもたらす豊かさにこそ、その本質がある。
本計画は、その画一的な指標のみを追い求めるのではなく、60代夫婦の暮らし方に寄り添い、コストを最適化しながら「本当の快適さとは何か」を問い直したリノベーションである。その思想はモノ選びにも貫かれ、室内の木製建具は全て、自社運営のアップサイクルショップ「PAAK STOCK」で再生されたものだ。性能も、モノも、画一的な新品に頼るのではない。四季の移ろいを我慢するのではなく、五感で味わう豊かさのための、新しい家のあり方を示すものである。

費用 1100万円(税込) 物件種別 一戸建
リノベーション
形態
持ち家のリノベーション 家族構成 二人暮らし
築年数 45年 面積 136.38㎡
施工期間 4ヶ月

間取り

BEFORE 5LDK

AFTER 3LDK

お問い合わせ先

paak design株式会社

〒889-2535 宮崎県日南市飫肥5-2-18 2F

TEL:0987-55-0088

リノベーション事例一覧に戻る