リノベーション事例

2025.09.17

50年先も快適に暮らせる、土間のある住まい

  • 関西
  • 断熱改修

株式会社アトリエイハウズ

<before>駐車場はなく塀や樹木で囲まれた暗い印象だった

築60年の連棟式RC造住宅を対象にした今回のプロジェクトは、「50年後も住み続けたくなる家」をテーマに据え、断熱性・可変性・デザイン性を融合したリノベーションです。構造躯体を活かしつつ、外断熱によって現代の快適性を確保。仕上げはあえて抑え、住まい手が自由に手を加えられる“余白”を意識した空間づくりがなされています。土間がリビングまで連続する開放的な間取りや、むき出しの配管、露出した構造など、素材のラフさを残した意匠が特徴。住まいでありながら、アトリエやギャラリーのような雰囲気も併せ持っています。さらに、2台分の駐車スペースや植栽の配置にも配慮し、街並みにも馴染む外構計画を実現。長く住み続けたくなる、柔軟性と居心地を兼ね備えた一邸です。

費用 2500万円(税込) 物件種別 その他
リノベーション
形態
中古を買ってリノベーション 家族構成
築年数 61年 面積 94.12㎡
施工期間 5ヶ月

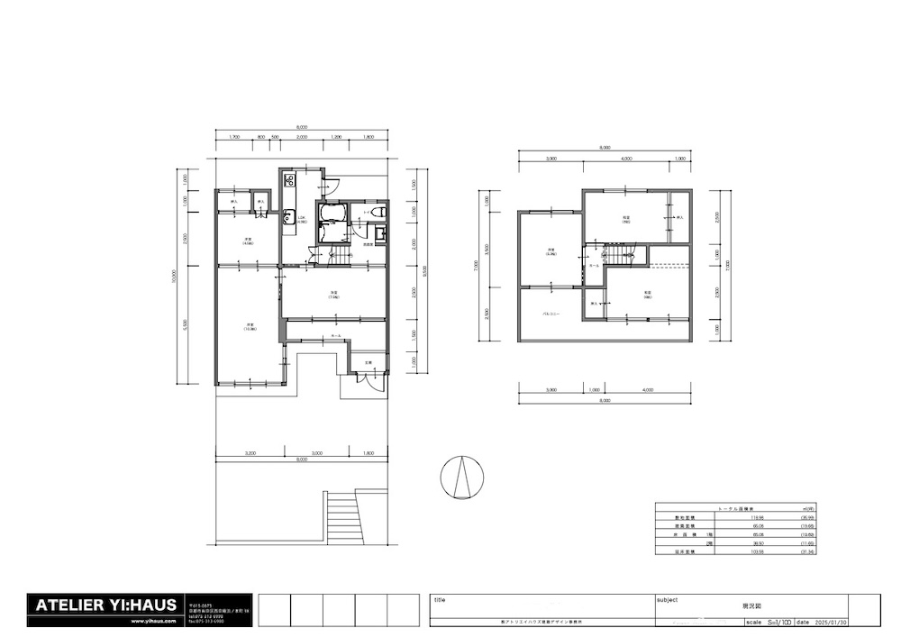
間取り

BEFORE 間仕切の多い空間

AFTER 3LDK

お問い合わせ先

株式会社アトリエイハウズ

〒617-0004 京都府向日市鶏冠井町沢ノ西2番地の26

TEL:075-313-6990

リノベーション事例一覧に戻る