リノベーション事例

2025.09.16

積み重ねた家

  • 信越・北陸
  • 戸建
  • 中古を買ってリノベーション
  • 家全体
  • 水まわり
  • 居室・その他
  • 屋外
  • 耐震補強
  • 断熱改修

株式会社まごころ本舗

改修の履歴が残っていない家の取得は、リスクと不安が伴う。

立地は新潟市中央区の人気のエリアで、建物は総2階に近く、
耐震や断熱の施工しやすさを期待して仕入れた。
街中とはいえ、家族1人1台駐車スペースを求められる車社会の新潟市において、
外構工事をすれば3~4台駐車できるようになる。
一級建築士の大工が施工したもので、焼瓦もきれいに残っていたので、
屋根を残したスケルトンリノベを実施すれば、
築60年でも快適で安全な建物を提供できる期待して仕入れた。

しかし現実は、そう甘くはなかった・・・。

調べてみると、
確認申請を伴わない増築により、平屋から2階建てとなっていた建物。
謄本に増築の履歴が残っていたものの、施工方法が分からず参考にならなかった。

「減らさず、強く、次の時代に」
解体で露わになった危うい構造を、再編しました。
耐震性能や断熱性も向上し、長期優良住宅も取得することで、家族が住み続けられる都市型ストックへと。

解体してみると、元が平屋の上に、上から載せるような形で増築された建物であることが判明。
増築特有の複雑な構造で危険性もあるため、平屋に戻す方向も考えた。
しかし、ファミリー層が購入する可能性が高い立地のため、
合理的な構造に再編しながら減築しない方向で計画を進めた。

●プラン
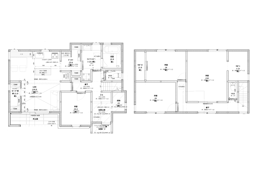
・ファミリー層が暮らしやすい4LDKで計画
・zoomなどのリモートワークも行えるよう、LDK内に書斎ブースも設置

●耐震
・バランスよく耐力壁を配置することで、局所的な負荷がかからないように工夫
・足りない部分の基礎は新設し、アンカーボルトも増設
・上下で入れ違う梁は強固に繋ぎ、上部と下部の構造が繋がるように補強。

●断熱
・産廃が困難にならないよう高性能グラスウールを採用。
・外壁は将来的に付加断熱も行えるよう、軽量な外壁材を使用。

●持続性
・地産地消の観点から、新潟県産材の材木を使用した。

点検や更新をしやすく改修することで、
建物はより長く存続し100年を超えても愛される、安全で快適な建物に生まれ変わった。

費用 2400万円(税込) 物件種別 一戸建
リノベーション
形態
中古を買ってリノベーション 家族構成 その他
築年数 60年 面積 130.60㎡
施工期間 5カ月

間取り

BEFORE 6K

AFTER 4LDK

お問い合わせ先

株式会社まごころ本舗

〒959-1823 新潟県五泉市駅前1-4-20

TEL:0250-25-7707

リノベーション事例一覧に戻る