リノベーション事例

2025.09.16

被災住宅の沈下修正工事

  • 信越・北陸
  • 戸建
  • 持ち家をリノベーション
  • 一人暮らし
  • 家全体

株式会社まごころ本舗

被災直後に現地調査に行った際には道路から土砂や水があふれ、片付けをした土嚢が積みあがっていた。
周辺の建物は一様に道路の奥へ沈下し、道路からも陥没していた。
建物同士がぶつかり、屋根の破損等も見られた。

2024年1月1日 能登半島地震。新潟県でも液状化により多くの建物が被害に遭った。

当該物件は2017年に当社にて買取再販を行った住宅であり、地震被害の報告を受け駆け付けたときは、道路から10㎝以上も下がり土砂があふれていた。
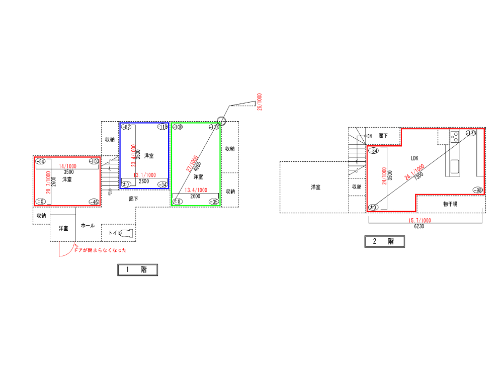
初期調査で確認できたのは、傾き27/1000、最大沈下量310㎜、屋内の壁面の破損
ジャッキアップの経験がある当社として、何とか復元に努めたいと思ったが、本件27/1000ほども傾きがあると、基礎から土台が31㎝も上がり基礎補修のノウハウもなかったため、プロの曳家とタッグを組んで進めていくものとした。

依頼先は高知県の(有)曳家岡本。沈下修正や曳家工事で多くの記事をブログで発信しており、新潟での依頼も多くあり、相当期間新潟に滞在して工事を進められるとのことで、当社も依頼することにした。
自社職人を一人つけ、プロの施工を学ばせていただいたが、やはり道具の量や施工の進め方は見様見真似で施工してきた我々とは大きく異なる。
ジャッキの数、揚げ方、施工中に万が一地震があった際のバックアップ、揚げた後の受け木材の使い方、モルタルの詰め方等、非常に多くのことを学ばせていただいた。

被災した地域には雑な工事で高単価と数をこなす業者もあふれる。
今回はプロに学びを得られたこと、一つでも多くの健全に修補する機会を得られたことは大きな財産になると思う。

費用 500万円(税込) 物件種別 一戸建
リノベーション
形態
持ち家のリノベーション 家族構成 一人暮らし
築年数 36年 面積 94.41㎡
施工期間 1カ月

間取り

BEFORE 27/1000

AFTER 0.5/1000

お問い合わせ先

株式会社まごころ本舗

〒959-1823 新潟県五泉市駅前1-4-20

TEL:025-384-4641

リノベーション事例一覧に戻る