2025.09.16
ナイス株式会社
 
                                住まいに対し「手間」を惜しまず、時間をかけてお手入れしてきたご家族の姿が目に浮かぶようなお部屋でした。ところどころに傷跡が見えるものの、全体的にはどこも丁寧に維持されており、この家がどれだけ大切にされてきたかが伝わってきました。
買取再販で内装を生まれ変わらせ、次にこの家に住むご家族も住まいに愛着をもって大切に時を刻んでいく。そんなステージになるような住まいを目指してリノベーション計画を練りました。
家族に寄り添って共に変化し、一緒に時を刻んでいく。そんな「住まいのシンボルがあったら良いな」という発想から、凛とした姿が美しい国産材の引戸を主役にしました。 桧を使った引戸製作でのこだわりは、見た目の美しさはもちろんモダンなインテリアにもしっかりと溶け込むよう建具面材にランダムピッチの溝を刻むことでリズム感のある表情を持たせています。引戸枠には部分的にアールを取り入れカジュアルに仕上げました。この引戸の最大のこだわりは「ランダムピッチの溝」による建具デザインです。これにより引戸を「召し合わせた際」「壁掛けにして突付けにした際」など、使用方法によって異なる配置なっても美しい一体感が生まれます。壁掛けとして使用する際は「1枚で使う」「2枚で使う」「寄せて使う」「離して使う」など様々な使い方が可能です。ライフスタイルに応じて柔軟にレイアウトを変えて好みのインテリアを楽しめます。木製建具は時が経つにつれてその味わいが増します。桧の引戸もその豊かな質感とデザイン性により、時とともに愛着が湧いてきます。桧の引戸を主役にしたリノベーションは、住む人に寄り添い、変化を共に楽しみたいという思から生まれた買取再販リノベーションです。日本の環境や林業を守る為の国産材の活用と共に、季節に合わせて暮らせるよう工夫してきた日本の伝統的な建築手法を守る意味でも、この引戸提案が広がっていくことを願います。
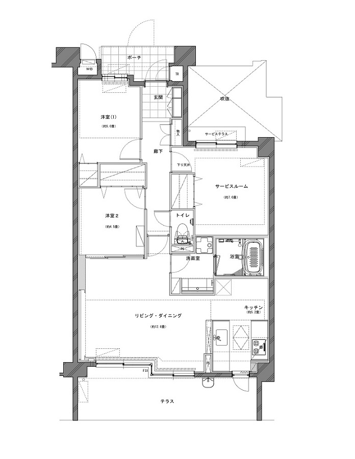
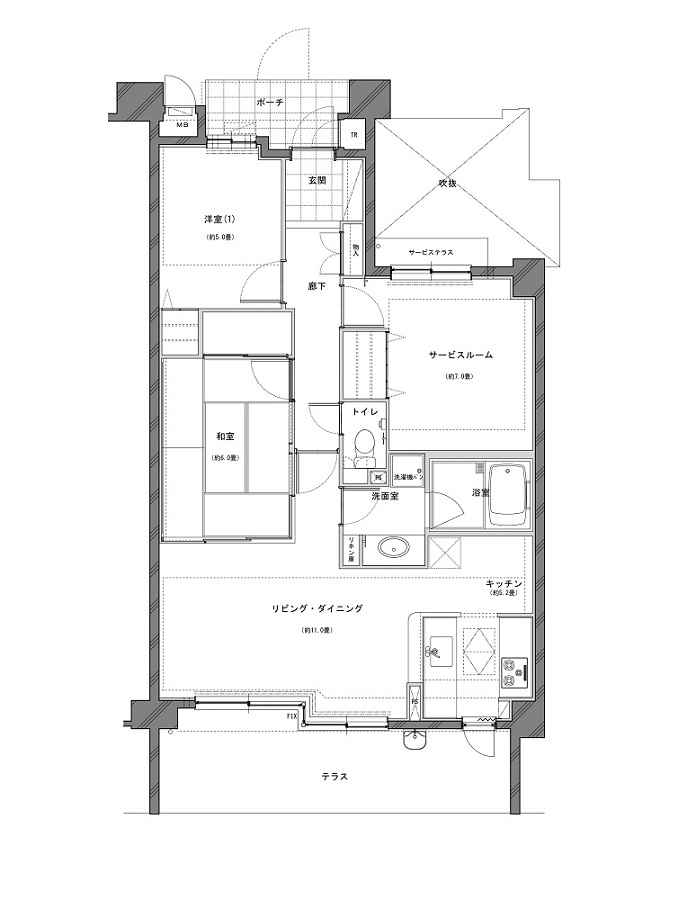
| 費用 | 1190万円(税込) | 物件種別 | マンション | 
|---|---|---|---|
| リノベーション 形態 | リノベーション済み物件 | 家族構成 | ファミリー | 
| 築年数 | 22年 | 面積 | 75.05㎡ | 
| 施工期間 | 3か月 | 
お問い合わせ先
〒230-8571 神奈川県横浜市鶴見区鶴見中央4-33-1 ナイスビル
TEL:045-505-5714