リノベーション事例

2025.09.16

光をいれるということ

  • 中国・四国
  • 戸建
  • 中古を買ってリノベーション
  • ファミリー
  • 家全体
  • 水まわり
  • 居室・その他
  • 耐震補強
  • 断熱改修

株式会社西崎組

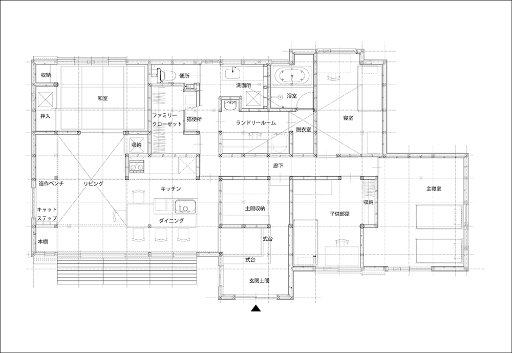
築40年程度の日本家屋は風情のある素材や空間になるにはまだ歴史が浅く昭和末期の住宅によくみられる、年に一度しか使用しない広い和室、システムキッチンや洋風応接室など価値ある存在には値しないと感じた。そして暗く長い中廊下に生活動線がまとまらず多くの部屋が存在していた。

特段目新しいことはせず、生活動線と採光との関係を素直に再整理し、間取りを大きく変更した。東には個室を固めて朝日が降り注ぐ部屋とし、南西にあった和室は家族3人と猫3匹がくつろげる大きくて明るいスペースを計画した。西側にはオリーブの苗木が植えられている畑が出来たばかりで、これから成長していく木を眺められるピクチャーウインドを設けた。玄関には大きな土間空間もとり、ちょっとした来客との語らう場所として寄与できるようにした。日本家屋は暗くて寒いというイメージを払拭した空間を魅せることができたのではないだろうか。

費用 1400万円(税込) 物件種別 一戸建
リノベーション
形態
中古を買ってリノベーション 家族構成 ファミリー
築年数 43年 面積 154.21㎡
施工期間 6

間取り

BEFORE 4LDK

AFTER 4LDK

お問い合わせ先

株式会社西崎組

〒761-4121 香川県小豆郡土庄町渕崎甲1338-2

TEL:0879-62-0159

リノベーション事例一覧に戻る