2025.09.16
株式会社コスモスイニシア
 
                                専有部の中心にダイニングルームとキッチンが配置され、こじんまりとした印象。
隣接する2部屋は同じような広さでゾーニングされ、
ダイニングは十分な居住性を確保するにはややコンパクト。
限られた面積のなかに、居住に必要な要素を目いっぱい詰め込んだ間取りとなっており、
結果として空間の余白や暮らしの柔軟性が乏しくなっていた。
本郷三丁目という立地は教育資源や都心アクセスに恵まれ、
親子二人といった小規模世帯が安心して暮らすには最適な環境。
だからこそ、この限られた空間を「親子二人暮らし」に最適化することで、
現代的なライフスタイルにふさわしい住まいへと更新する意義があると考えた。
親が子を育て、子もまた親を育てる。
日本では、子のいる世帯のうち約21%がひとり親と子の世帯を占め(注1)、
今後もさらに増えていくといわれている。
けれど新築や買取再販の住宅市場にはまだ「標準的な家族像」を前提とした間取りが多く、
ひとり親と子にフィットする住まいはほとんどない。
その課題に向き合うことが、この計画の出発点だ。
親と子の二人暮らしは、互いに育ちあう時間の積み重ね。
暮らしの中で、親も子も互いに成長していく。
試行錯誤をくり返し、ときにすれ違いながらも、暮らしを通じて関係を深めていく。
その営みを「共育」ととらえ、支える器として住まいを考えた。
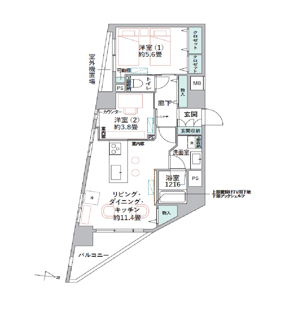
51.8㎡という限られた面積で「自立と共生」を両立させるゾーニング。
二人で食卓を囲むLDK、一人の時間に没頭できるラボ、安心して眠れる主寝室。
リビングから洗面・浴室へ直結する動線は子の自立を促し、親の負担も軽くする。
ホワイトボードや飾り棚の仕掛けは、会話や学びを広げ、暮らしの探求心を育てる。
こうして「標準的な家族像」を超え、ひとり親と子が自分らしく共に育ちあえる住まいを形にした。
小さな面積に込めた工夫から、多様な家族を肯定する住まいの可能性を広げていきたい。
| 費用 | 1100万円(税込) | 物件種別 | マンション | 
|---|---|---|---|
| リノベーション 形態 | リノベーション済み物件 | 家族構成 | 二人暮らし | 
| 築年数 | 28年 | 面積 | 51.80㎡ | 
| 施工期間 | 3ヶ月 |