リノベーション事例

2025.09.14

人間は、つくることをやめない

  • 首都圏
  • 戸建
  • 持ち家をリノベーション
  • ファミリー
  • 家全体
  • 水まわり
  • 居室・その他
  • 屋外
  • 耐震補強
  • 断熱改修

合同会社つみき設計施工社

セキスイ​​ハイムM1は1970年代初頭「住宅の流通革命」と銘打ち、販売が開始された日本初期の量産型鉄骨ユニット住宅である。2.4m×5.6mの箱型ユニットを工場で製造し、現場でクレーンで設置・連結する建設方法(写真は別現場の施工風景・積水化学工業提供)は、住居の一品生産から大量生産への転換を象徴した。本邸では、来客を食事会などへ招く機会が多く、また施主が自宅でアート教室を主催し、子どもから大人まで多世代の人々が集う場となっていた。しかしLDKは手狭で、キッチンも客人に背を向けて作業せざるを得ず、場の魅力を十分に引き出せない構造であった。一方で、20年前に施主友人の大工が造作した収納や、父の誕生日に家族で描いた壁の絵、子どもたちと一緒に柄を描いた壁など、暮らしの記憶を宿す要素が随所に残されていた。これらを活かしつつ、雨漏りや水回り設備の老朽化、断熱性能不足といった性能面の改善も求められた。

良質な住居の量産という⼈々の夢を背負って1971年に生産を開始した、セキスイハイムM1。その洗練された造形に⼀⽬惚れした施主は、20年前に中古で購⼊した。今回のリノベは、当時建設された1万8千棟以上分の1棟であるこの家を、家族や仲間の個性・多様性を表現するキャンバスへとアップデートする試みだった。

まずは雨漏りを直し断熱を付加するなど住居の性能を整えた上で、⼿狭な間取りを、壁を抜きユニットを繋ぐことで⼤らかなキャンバスの様な空間へと、職⼈の⼿で作り変えた。その後、内装解体や研磨、塗装や造作、塀や樹⽊の撤去まで、膨⼤な⼯程を家族と100⼈以上の仲間が担った。数か⽉に及ぶDIYの期間、住むこととつくることの境界は溶け、つくることはプロの特権ではなく、誰にでも開かれた⾏為だと、誰もが実感した。デザインも同じだ。設計者が描いた⽴⾯図を施主に渡しスケッチが何枚も描かれた。それを元に家族と職⼈が外壁を塗った。家具は施主が線を先に描き、設計者が合理的な⼨法を加えた。キッチンや天井には、施主と⼦供たちが、巨⼤な油絵の様に⾊や形を描いた。

こうして1万8千棟以上分の1棟は、家族の表現の場へと変わった。同時に⽣み出されたのは、100⼈をこえる、⾃由な作り⼿だった。作り⼿が多様なら、リノベはますます⾯⽩くなる。私たちプロに求められるのは、その⾃由と多様性を受け入れ、⽀え、⾯⽩がる、覚悟だ。

費用 1000万円(税込) 物件種別 一戸建
リノベーション
形態
持ち家のリノベーション 家族構成 ファミリー
築年数 54年 面積 101.40㎡
施工期間 6ヶ月

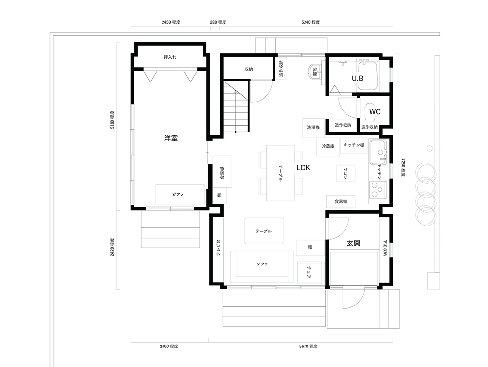
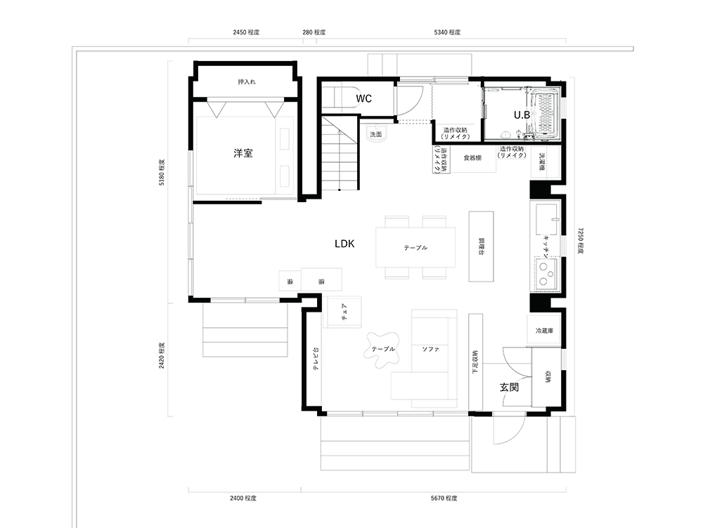
間取り

BEFORE 1LDK

AFTER 1LDK

お問い合わせ先

合同会社つみき設計施工社

〒272-0804 千葉県市川市南大野3-14-4

TEL:090-3394-2396

リノベーション事例一覧に戻る