リノベーション事例

2025.09.13

整えて、暮らしを楽しむ ― ストック再生と新しい快適性の提案

  • 北海道
  • マンション
  • リノベーション済み物件
  • ファミリー
  • 家全体

札幌アポロ株式会社

新築当時から一度もリフォームがされていないお部屋。
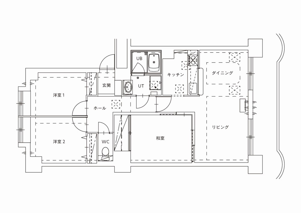
元の間取りは窓のない和室を含めた3LDKの一般的な間取りだった。
床材は、リビング・ダイニング・洋室1・洋室2はカーペット、和室は畳、水廻りはクッションフロア。
天井や壁に凹凸が多く、線が多く複雑な印象のお部屋だった。
また、玄関入って真正面にトイレドアが見え、その印象をどうしても変えたかった。

本プロジェクトは、札幌・西岡に建つ築年数の経過したマンションの一室を再生したモデルルームである。
生活利便性と自然環境に恵まれながらも、断熱性能や収納不足といった既存ストック住宅の課題を抱えていた。

そこで、これからの家族のライフスタイルに寄り添いながら性能を底上げするリノベーションを計画。

想定した住まい手は、ご夫婦と就学前のお子さまの3人家族。
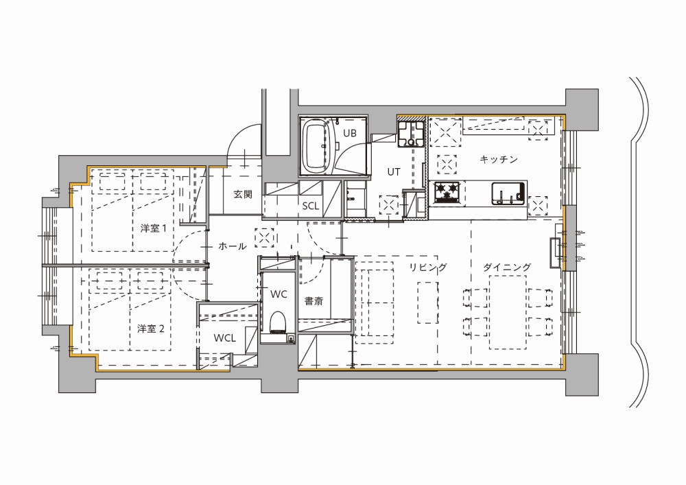
趣味の本やアウトドア用品、子どものおもちゃを受け止めるため、書斎・シューズクロゼット・ウォークインクロゼットを要所に配置し、「あるべきものが、あるべき場所に収まる」仕組みを実現した。

デザインはグレートーンを基調に、照明や床材に遊び心を添え、シンプルでありながら表情のある空間を創出。
家族がそれぞれの時間を楽しみながら顔を合わせられるLDKは、多様化する暮らし方に応える新しい家族像を提示する。

さらに壁に断熱材を追加し、Low-Eガス入り内窓を採用。
中古マンションでUA値0.28(断熱等級6)を実現し、2030年に義務化されるZEH基準を遥かに超える性能で、北海道の寒さに対する快適さと省エネ性を両立した。

本プロジェクトは、ストック再生・暮らしを整える設計・高性能化を組み合わせた「ちょうどよいリノベーション」の答えである。

費用 1495万円(税込) 物件種別 マンション
リノベーション
形態
リノベーション済み物件 家族構成 ファミリー
築年数 36年 面積 75.25㎡
施工期間 3か月

間取り

BEFORE 3LDK

AFTER 2LDK+書斎

お問い合わせ先

札幌アポロ株式会社

〒064-0805 北海道札幌市中央区南5条西10-1015

TEL:011-299-3786

リノベーション事例一覧に戻る