リノベーション事例

2025.09.13

抜け道がつなぐ、ねこと人の暮らし

  • 北海道
  • マンション
  • 中古を買ってリノベーション
  • 二人暮らし
  • 家全体
  • 居室・その他

札幌アポロ株式会社

窓が多く、日当たりと風通しの良い角部屋。
築年数も浅く、もともと綺麗なマンションだった。

リビングに隣接する部屋は扉をなくし、ねこが自由に遊び回れる空間へと生まれ変わった。

「ねこを、もっと自由に遊ばせてあげたい」
2匹のねこと暮らすご夫婦の、その想いが同マンション内の大きなお部屋への住み替えに至った。
こうして、ねこファーストのリノベーションが始まる。

まず取り入れたのは、壁をアーチ状にあけた小さな抜け道とキャットウォーク。
ご夫婦を見下ろすことができるこの場所は、ねこにとっての特等席。
抜け道からひょっこり顔を出したり、のびをしたり―。
ソファに座れば、そんな姿がふと視界に映り込み、ご夫婦に小さな幸せを届けてくれる。

さらに、人の視線が届きにくい場所にねこのトイレを設け、まるでねこだけが知っている秘密基地のよう。
床には手入れが楽なタイルカーペットを採用。汚れても部分交換できるため、清潔で持続可能な暮らしに。

かつてはねこが夜も自由に移動できるよう、各部屋の扉を開け放して眠っていたご夫婦。
今では抜け道のおかげで扉を閉められるようになり、暮らしやすさが向上したという。

「キッチンはカフェのような雰囲気に」という想いから、木とタイルを組み合わせ、黒の照明や建具で空間を引き締めた。
ご夫婦に合わせたサイズでダイニングテーブルを造作し、暮らしに寄り添う居心地のよい場所となった。

ねこも人も互いにここちよく過ごせる住まい。
家のどこを切り取っても、ねこを近くに感じられるあたたかな住まいがここに実現した。

費用 500万円(税込) 物件種別 マンション
リノベーション
形態
中古を買ってリノベーション 家族構成 二人暮らし
築年数 11年 面積 74.55㎡
施工期間 2カ月

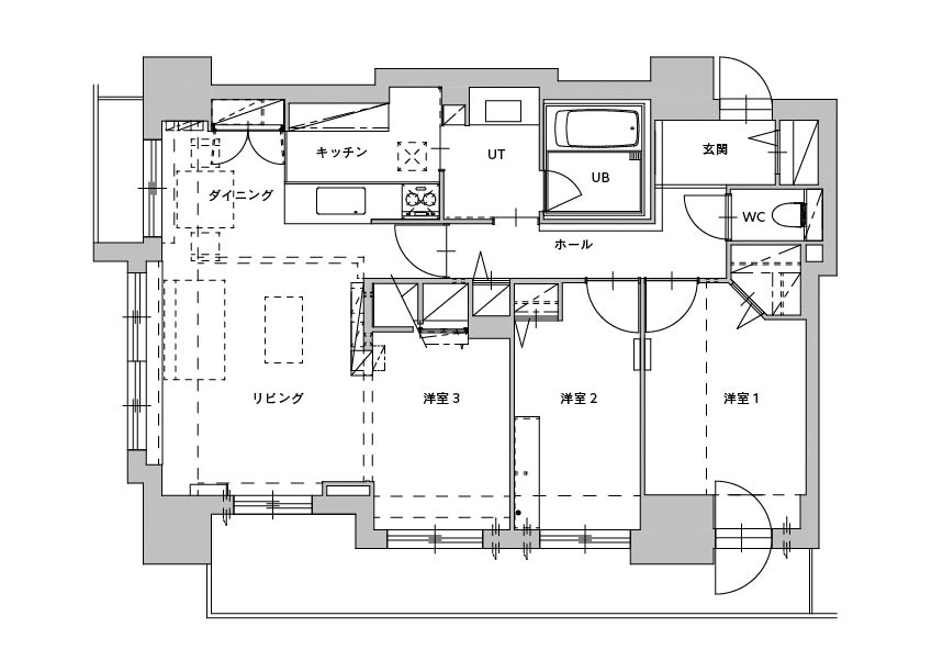
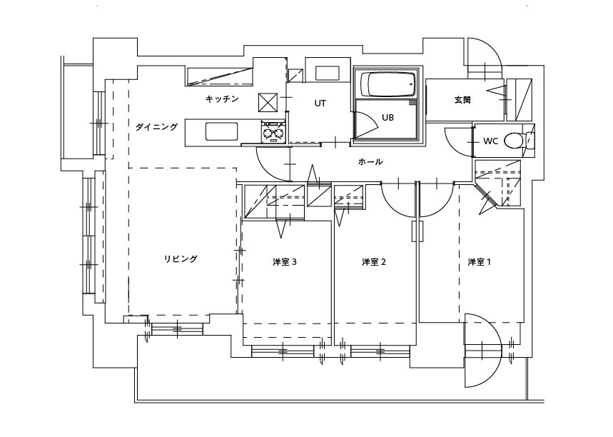
間取り

BEFORE 3LDK

AFTER 3LDK

お問い合わせ先

札幌アポロ株式会社

〒064-0805 北海道札幌市中央区南5条西10-1015

TEL:011-299-0786

リノベーション事例一覧に戻る