2025.09.09
株式会社リビタ
 
                                前住戸の暮らしを支えてきた造作家具がそのまま残されていました。木肌には長い時間が刻んだ痕跡や風合いがあり、このままでは単なる「古さ」として見過ごされ、廃棄される可能性もありました。一方で私たちは、そこに暮らしの積層が見て取れると捉え、既存の要素を再配置・再解釈して新しい住まいに活かしました。再利用は手間やコストが増えることもありますが、時間の痕跡が見えることでリノベーションした空間に親しみが生まれ、長く使い続けるきっかけにつながると考えています。こうした考え方が、このプロジェクトを進める推進力になりました。
リノベーション再販は効率性が優先され、仕上がりが画一的になりがちです。見た目は整っていても、住まい手が愛着を育むきっかけは少なく、「暮らす喜び」につながりにくいことがあります。愛着のない住まいは短命化しやすく、環境負荷や資源の浪費にもつながります。私たちは「長く愛着をもって暮らしていただくこと」こそが人にも環境にも大切だと考え、「時間とともに価値が深まる住まい」を再販の枠組みで実現する方法を模索してきました。その答えのひとつが、家具メーカー・マルニ木工と協働した「時をかける部屋」です。代々木にある本住戸では、既存の造作家具を廃棄せずに活用し、痕跡を未来へ引き継ぎました。また、家具製作で生まれる端材や木粉をアップサイクルし、壁面のアート、扉の取っ手、左官材として取り込みました。単なる再利用にとどまらず、「家具の過去」と「建築の現在」を重ねることで、その場所ならではの個性を生み出しています。そこにマルニ木工の家具が置かれると、素材や意匠と空間が調和し、住まい全体に一体感が生まれます。私たちは、こうした積み重ねが「長く愛着をもって暮らすこと」につながると信じています。効率優先の再販では省かれがちな要素をあえて取り入れることで、「この場所、この建物、この部屋、この関係者だからこそ実現できた住まい」を、私たちはこれからも届けていきます。
| 費用 | 2500万円(税込) | 物件種別 | マンション | 
|---|---|---|---|
| リノベーション 形態 | リノベーション済み物件 | 家族構成 | 二人暮らし | 
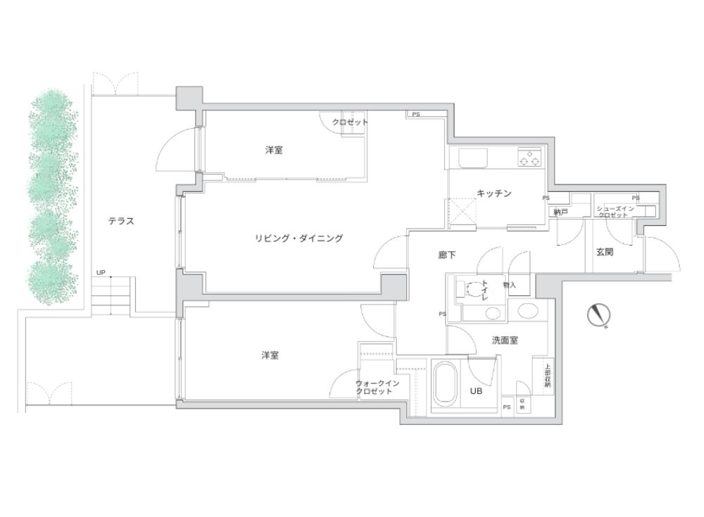
| 築年数 | 27年 | 面積 | 85.71㎡ | 
| 施工期間 | 4ヶ月 |