リノベーション事例

2025.09.09

暫定リノベ住宅 - 20years house -

  • 東海
  • 戸建
  • 中古を買ってリノベーション
  • 二人暮らし
  • 居室・その他

住工房株式会社

【築30年住宅の素顔】
舞台となったのは、通風・採光に恵まれた丘に立つ築30年の木造2階建て住宅。ハザードマップ上のリスクは低く、最寄り駅にも近いという好条件。さらにRC造のカーポートの上には、敷地の高低差を活かし、道路からの視線を遮るテラスが設けられており、プライバシー性と開放感を兼ね備えていた。普遍的な魅力がある一方で、間取りには課題が残っていた。1階は和室2室と洋室1室に区切られ、やや窮屈な印象。立地条件の良い南側の部屋とキッチンが離れて配置されていたため、暮らしの動線が不自然で、そのまま住み続けるには不便があった。このような「魅力と課題」が混在する既存住宅を、20年間の暮らしに寄り添う家へと再生する計画が始まった。

【一生ものから“20年もの”へ】従来の「一生ものの住宅」という価値観に対し、本計画が目指したのは“20年ものの住宅”。子の誕生から独立までを一つのライフサイクルと捉え、その変化に対応する住まいを設計した。建物寿命から見れば短期的だが、その暫定性こそ現代ニーズに合致すると考えた。選んだのは築30年の中古住宅。土地代のみで取得し、ライフサイクルコストを踏まえ「20年間賃貸と同等の金額」でリノベーションを計画。『設計の4つの視点』《柔らかな空間》壁を一部撤去し動線と居住空間の境界を曖昧に。多様な活動を受け入れる余白を確保し、柔軟な空間を実現。《家の中心》家族が自然に集まる場所として「光の暖炉」を創出。間接照明とタイルを組み合わせ、家全体を象徴する中心を設けた。《既存構成を活かす》押入や仏間をカップボードやヌックに再生。障子は断熱性を活かし自然光を取り込む要とした。建材費を抑えつつ既存の価値を引き出した。《環境の改善》光を遮る間仕切りを撤去し自然光を広げた。キッチンを中央に置き風通しを改善。南面に縁側の余白を設け熱環境を和らげた。『新しい住まいの価値観へ』この住宅は「一生もの」でなく「20年もの」という新しい発想から生まれた。暫定的ながら豊かな暮らしを実現する手法は、既存住宅の流通を促すケーススタディとなる。限られた時間を楽しむ住まいづくりの挑戦は、価値観を変えていく可能性を秘めている。

費用 1420万円(税込) 物件種別 一戸建
リノベーション
形態
中古を買ってリノベーション 家族構成 二人暮らし
築年数 31年 面積 60.45㎡
施工期間 約3ヶ月

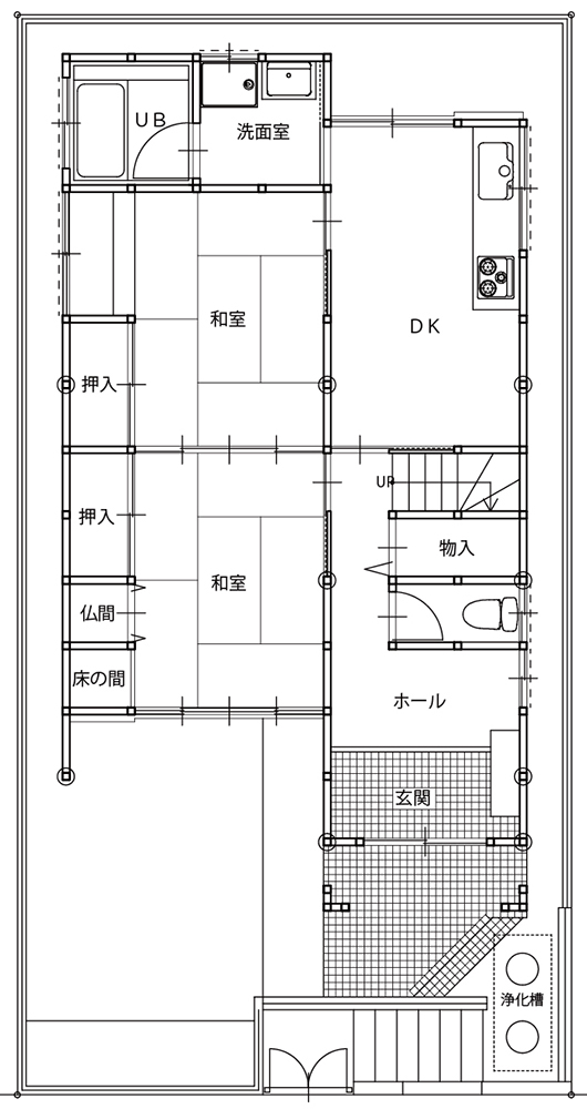
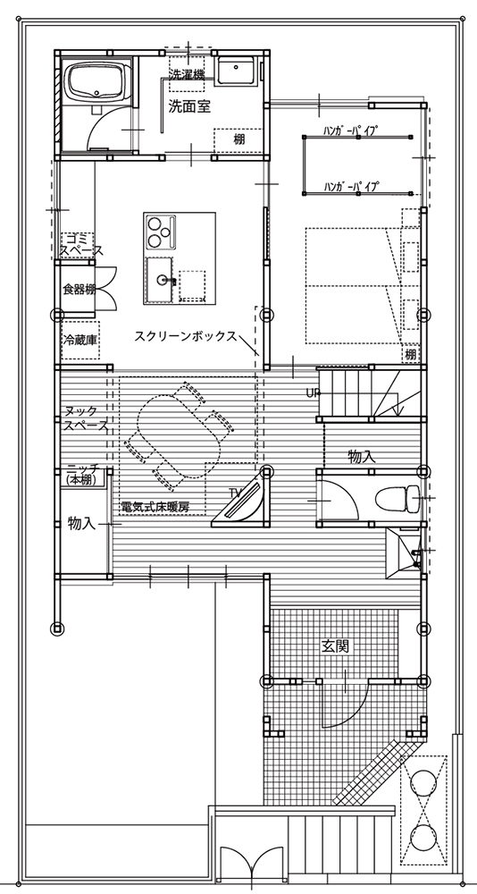
間取り

BEFORE Before

AFTER After

お問い合わせ先

住工房株式会社

〒470-0162 愛知県愛知郡東郷町春木野渕16-1

TEL:0561-38-7567

リノベーション事例一覧に戻る