2025.09.04
株式会社ビジネスパートナー
 
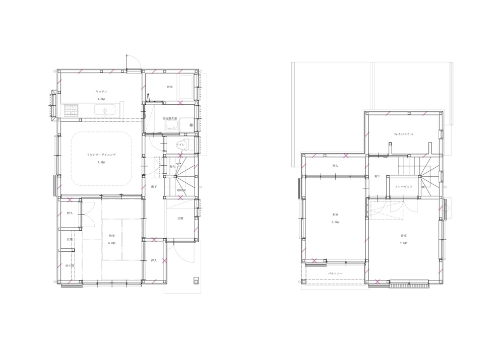
                                リノベ前は「セミクローズドキッチン+仕切られたダイニング+和室」
少し暗い印象の空間でしたが、間仕切りを取り払い明るく開放的な空間へ。
かつての家にあった、どこか懐かしく、心が落ち着く空気感。
その記憶を受け継ぎながら、現代の快適性や性能を備えた
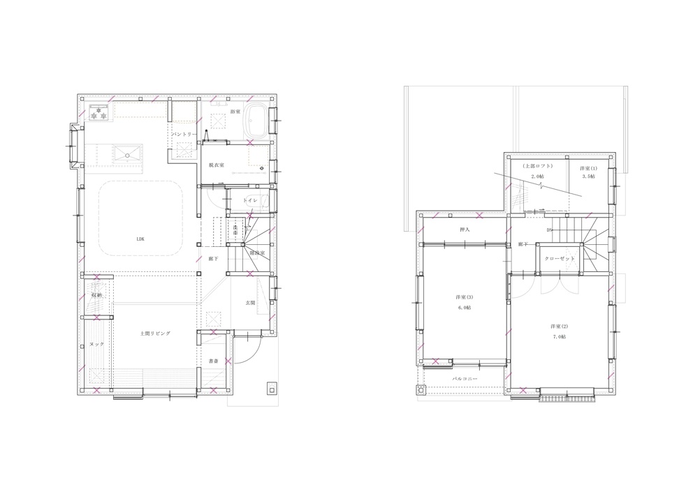
“新しい暮らしの形”を提案する「Nostalgic Home」
味わいある柱や梁を活かしながら、
土間のあるリビングや、使い勝手のよいパントリーなど、
日々の暮らしに寄り添う工夫を随所に。
外壁には風合い豊かな塗り壁を採用し、
内装も素材感を大切に。
断熱性や耐震性、維持管理のしやすさにも配慮し、
見えないところにも安心を。
懐かしさを受け継ぎながら、
これからの暮らしにふさわしい住まいを――。
| 費用 | 2700万円(税込) | 物件種別 | 一戸建 | 
|---|---|---|---|
| リノベーション 形態 | 中古を買ってリノベーション | 家族構成 | その他 | 
| 築年数 | 32年 | 面積 | 86.94㎡ | 
| 施工期間 | 5.1ヶ月 | 
お問い合わせ先
〒890-0054 鹿児島県鹿児島市鹿児島市荒田2-23-17
TEL:099-814-2130