2025.08.26
株式会社リビタ
 
                                下町情緒あふれ、自然も豊かな駒込。舞台となるのは、築30年以上の賃貸マンションの一室である。
元の間取りはよくある2LDK。各部屋は狭く区切られ、せっかくの3面採光や出窓も十分に活かされていなかった。街や建物が持つ個性とは裏腹に、住戸には画一的な印象が漂っていた。
近年の賃貸住宅には、表記上の部屋数を優先するあまり一室ごとを極端に狭めたプランや、似通ったデザインが多く見られる。そこでは、住まい手の個性や想いが日々の暮らしの中で十分に発揮されにくいのではないだろうか。
そこで私たちは、賃貸住宅の間取りやデザインを、もっと自由な発想で、もっと楽しくできないかと考えた。元の空間が持つポテンシャルを引き出しつつ、住まい手が街とつながり、個性を表現できる住まいへ。日常を楽しむ拠点となることを目指し、この改修計画を行った。
このリノベーションは、賃貸住宅に新たな可能性を拓く試みである。
「好きな街に住むこと」をもっと楽しみ、「好きなもので暮らしを彩る」——そんな自由なライフスタイルを実現する住まいを目指した。
デザインの起点となったのは駒込の街並み。淡いグリーンの壁やレンガ色に染色した造作家具は街の風景から着想を得ており、住まい手の個性を受けとめながらも、街とのつながりを日々感じられる空間を生み出した。
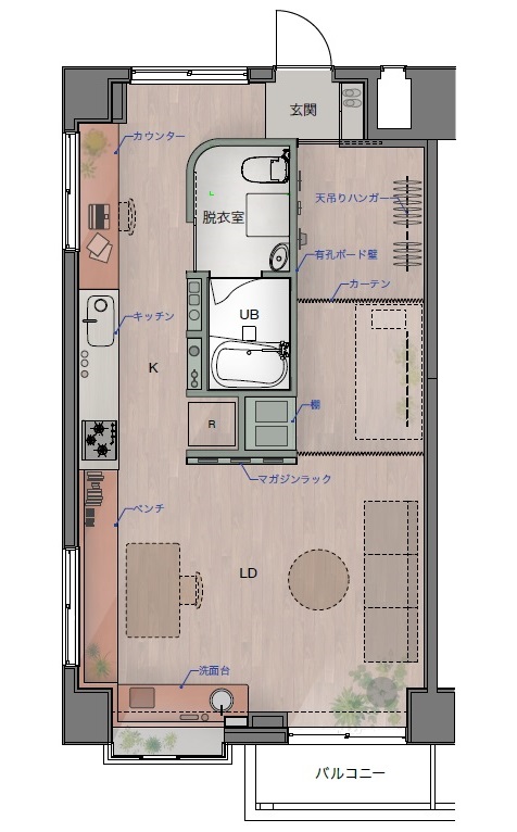
空間構成では、3面採光を最大限に活かすため、浴室・脱衣・トイレをあえて住戸中央に配置。水回りコアを中心に回遊できるワンルームとし、壁沿いにカウンターやキッチン、ベンチ、マガジンラック、有孔ボードを設えることで、お気に入りのものに囲まれた暮らしを可能にした。さらにカーテン間仕切りにより、広々としたLDKからベッドスペースや書斎、収納へと自在に切り替えられ、多様な住み方を実現する。
既存の出窓を活かした洗面台は、外光を浴びながら身支度できる心地よい場となり、「街に出かけたくなる」日常をつくり出す。空間の随所に散りばめられた“使いこなし”の仕掛けは住まい手の想像力を刺激し、「どう暮らすか」を自ら考え、選び取るきっかけを与える。賃貸住宅であっても自分らしい暮らしを追求できる。
この住まいは、住まい手の生活をより豊かにするとともに、賃貸住宅の未来を切り拓く存在となる。
| 費用 | 1150万円(税込) | 物件種別 | マンション | 
|---|---|---|---|
| リノベーション 形態 | リノベーション賃貸 | 家族構成 | 一人暮らし | 
| 築年数 | 37年 | 面積 | 52.65㎡ | 
| 施工期間 | 4カ月 |