リノベーション事例

2018.08.30

第二の暮らしかた ー 和モダンリノベ ー

  • 九州・沖縄

内村建設株式会社

家族と過ごした大切な場所。子供たちも自立し、夫婦の時間も多くなってきた。60歳になったタイミングで暮らしを変えようと決心。週末帰ってくる子供たち、気の合う仲間との集いの場になることも多い。広いお部屋があった方が、使いやすい。趣味のお酒を飾るスペースも欲しいな。好きな木材を使い温かみのある家にしたいな。大切な時間を過ごしてきた空間に、わくわくする新しい時間を刻む準備ができました。

1980年に購入した2階建ての一軒家。5人兄弟の7人家族であった為、手狭になり1度は増築し部屋を増やした。当時は、子供優先だったので子供部屋の多い造りがベストだった。子供たちも成長し自立して、次は自分たちの為の家づくり。スギやヒノキなどの木材を使い温かみのある家にあこがれていた。将来のことも考え1階だけで生活ができるように、よりコンパクトな生活導線へ。1階にあった部屋の壁を取り、広々したリビングダイニングへ、キッチンは対面式に変更。収納部分が少なかったキッチンには、パントリーを造り、趣味のお酒を飾る棚も設置。気の合う仲間や親戚、家族が集まれる広いお部屋も2階に造りました。

費用 物件種別 一戸建
リノベーション
形態
持ち家のリノベーション 家族構成
築年数 46年 面積 142.50㎡
施工期間 2017.3.13~2017.6.10

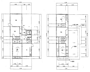
間取り

BEFORE 個室が多く、2階に寝室や物干しがあるため将来のことを考えると不安な点があった。

AFTER 1階部分だけで生活ができるよう生活導線をよりコンパクトにし、2階部分は家族や友人が来た時に使うスペースへ。

お問い合わせ先

内村建設株式会社

〒892-0818 鹿児島県鹿児島市上本町2-12

TEL:099-222-0116

リノベーション事例一覧に戻る