
500万円未満
10%リフォーム ~カラーで魅せる空間演出~
[マンション] [エリア:東京都] [掲載日:2016-09-27] [事例掲載会員企業:株式会社オクタ]
-
部門
500万円未満
-
費用
340万円(税込み)
-
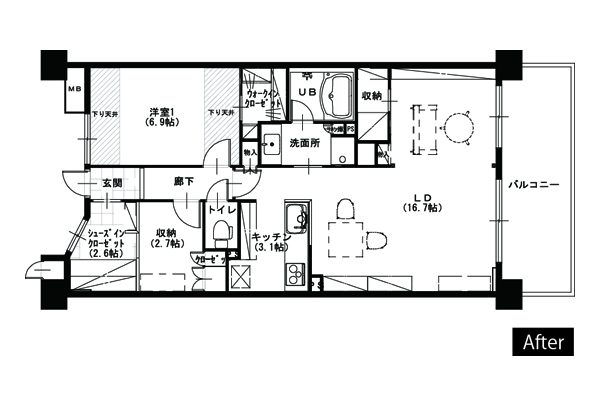
間取り
2LDK+SIC
-
タイプ
自由設計リフォーム
-
費用に含まれるもの
居室・その他 / トイレ+SIC+造作棚・本棚+収納付き可動式ベンチ
- 施主支給設備(費用に含まれないもの)
Before
Beforeコメント:
中古マンションを購入して自分らしい住まいを実現しようと、物件探しから担当した。
普段は仕事で忙しいので家ではゆったり過ごしたい、友人達と楽しく過ごせる空間にしたい、シューズクロークや本棚を作りたい等の実現したいことを、物件購入の時点で決まったリフォーム予算内で提案してほしい。








