首都圏
北海道
東北
東海
関西
中国・四国
九州
アイデアコンペ
リノベーション・オブ・ザ・イヤー
HOME
募集要項
エントリー作品
› 500万円未満部門
› 800万円未満部門
› 800万円以上部門
› 無差別級部門
ノミネート作品(一次選考結果)
選考結果
HOME
>
エントリー:500万円未満部門
>
ku.ra.raで買ってリノベーションvol.1@横川町
ツイート
http://www.renovation.or.jp/expo/oftheyear/2014/view/651
[マンション]
[エリア:広島県]
[掲載日:2014-09-11]
[事例掲載会員企業:
アイエス株式会社
]
ku.ra.raで買ってリノベーションvol.1@横川町
500万円未満部門
490万円(税込み)
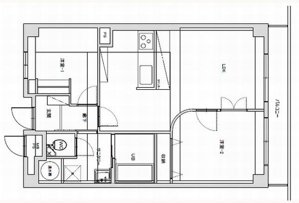
1LDK
再販モデル
家全体 /
Beforeコメント:
2LDK(52.51㎡+バルコニー面積 5.9㎡)のコンパクトさは、
お一人暮らし・お二人暮らしにほど良いサイズ
今回のテーマは【ku.ra.ra-クララ-で買ってリノベーション】!
弊社インテリアショップ・クララおすすめのドアや窓・パーツなど
おうちづくりのアイテムをひとつひとつセレクトして、
クララ仕様にコーディネートしました。
Afterコメント:
ダイニングキッチンは、洋室部分とつなげて広いLDKに変更。
通路の狭さを解消するため、壁の一部がR(丸く切り取り)に
なっているのがポイントです。
入口のドアは、人気のガラス格子ドア。
グリーン系のオイルで渋みを出し、ガラスのノブをつけました。
床は本物の木のような凸凹のあるフロアタイルです。
キッチンは少し移動して、セミオープンな対面式にしました。
造作カウンターもつけて、カフェのような雰囲気に。
おしゃべりを楽しみながら食事ができそうです。
LDKに隣接する洋室には、ku.ra.raオリジナルのドアを。
一見アンティークのようですが、じつは輸入物の新しいドアを
エイジング加工しているんです!
隣室からの灯りがほんのりと洩れるガラス窓も、
空間に彩りをあたえてくれます。
クローゼットドア付きの収納もたっぷり取っています。
玄関土間を広げたり、
廊下からリビングへの段差をなくしたりと、
機能面でも暮らしやすくする工夫がいっぱい。
配管もすべて新しくしてあります。
工業系デザインが男性にも好評なペンダントライト
無骨な中にもあたたかさを感じる、
鉄作家さんによるトイレットペーパーホルダー
質感も収納力も◎なキッチンキャビネット
ふかふかの広い座面でくつろぐ1シーターソファなどなど
いたるところにku.ra.raのこだわりアイテムを使用!
ちょっとした細かいパーツにもこだわった贅沢仕上げで、
おウチに愛着がわくことまちがいナシです♪
築年月
1980年07月
構 造
SRC造
リノベーション面積
52.51㎡
施工期間
1ヶ月
備 考
アイエス株式会社
ツイート
PAGE TOP
お一人暮らし・お二人暮らしにほど良いサイズ
今回のテーマは【ku.ra.ra-クララ-で買ってリノベーション】!
弊社インテリアショップ・クララおすすめのドアや窓・パーツなど
おうちづくりのアイテムをひとつひとつセレクトして、
クララ仕様にコーディネートしました。