首都圏
北海道
東北
東海
関西
中国・四国
九州
アイデアコンペ
リノベーション・オブ・ザ・イヤー
HOME
募集要項
エントリー作品
› 500万円未満部門
› 800万円未満部門
› 800万円以上部門
› 無差別級部門
ノミネート作品(一次選考結果)
選考結果
HOME
>
エントリー:500万円未満部門
>
削ぎ落とす
ツイート
http://www.renovation.or.jp/expo/oftheyear/2014/view/586
[マンション]
[エリア:東京都]
[掲載日:2014-09-06]
[事例掲載会員企業:
株式会社錬
]
削ぎ落とす
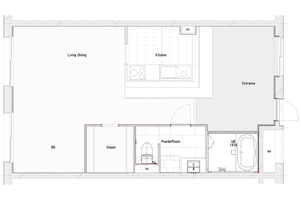
500万円未満部門
480万円(税込み)
1room
自由設計リノベ
家全体 / 水まわり / 居室・その他 /
IHコンロ
Beforeコメント:
3DK
当初から予算が限られていた為、施主自身が水廻りを既存のまま残すとして諦めていた。
Afterコメント:
当初厳しい予算から部分リフォームとしてのプロジェクトのスタートであったが、構造、躯体の状態、階数、位置、規約、すべてが厳しい予算をカバーできるポテンシャルを秘めた物件であった。
施主のこれだけは絶対にやりたい事を守りつつ最終的にはフルリノベーションを実現する事が出来た。
躯体の状態を生かして既存クロスを削ぎ落とし、仕上げを施さずにそのままの仕上げとした天井と壁。プレキャストコンクリートのスラブにはリブがあり天井に良いアクセントを生んだ。
数少ない施主の要望であったブリックタイルで囲われたキッチンについては男の厨房らしく業務用を設置した。
床は玄関周りに広めに土間を設け、残りのスペースには最大のこだわりであるヘリンボーンのフローリングを敷き詰めた。
それぞれの用途をもつスペースを確保しながらも極力壁を作らず、置き家具で仕切るなどすることで一つなぎの開放的な空間となった。
後日譚
ダイニングにあたるスペースには友人が多く訪れるようにとカウンターを大きくとったおかげか毎週末のように人が訪れ賑わっているという。
先日とうとう近隣の方に店舗と認識されている事が判明した。
築年月
1987年02月
構 造
RC造
リノベーション面積
54.68㎡
施工期間
2カ月
備 考
設計 株式会社錬 森本 敬士
コーディネイト 株式会社リビタ 桜庭伸也
株式会社錬
ツイート
PAGE TOP
当初から予算が限られていた為、施主自身が水廻りを既存のまま残すとして諦めていた。