首都圏
北海道
東北
東海
関西
中国・四国
九州
アイデアコンペ
リノベーション・オブ・ザ・イヤー
HOME
募集要項
エントリー作品
› 500万円未満部門
› 800万円未満部門
› 800万円以上部門
› 無差別級部門
ノミネート作品(一次選考結果)
選考結果
HOME
>
エントリー:800万円以上部門
>
『パーティーLife』 THE KITCHEN 織部
ツイート
http://www.renovation.or.jp/expo/oftheyear/2014/view/563
[マンション]
[エリア:愛知県]
[掲載日:2014-09-04]
[事例掲載会員企業:
ナグラ産業株式会社
]
『パーティーLife』 THE KITCHEN 織部
800万円以上部門
900万円(税込み)
2LDK
再販モデル
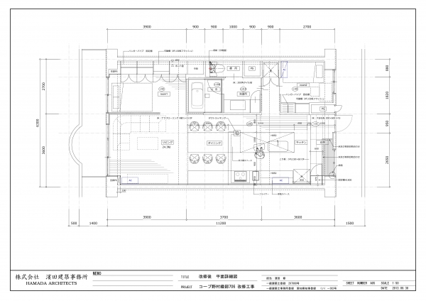
家全体 /
Beforeコメント:
名古屋の都心から車で20分程の生活環境として人気のエリア、学校、スーパーも充実しており、ファミリー層にも大人気の立地。
築37年のRCマンションを、友人を呼んでパーティーやお茶会等をやりたい人をターゲットに設計を構築。
Afterコメント:
キッチンコーディネーターと建築家さんにコラボしてもらい、キッチンを中心に人が集まる住空間としてデザイン設計。
また、限られた空間を広く見せるため、仕切りをカーテンにしたり、ガラス張りハーフユニットバスを取り入れたり、玄関からベランダまで一気通貫にしたり、工夫しました。
そんな結果、なんと、わが家のリフォームコンクールで、『名古屋市長賞』 を受賞することができました。
築年月
1977年05月
構 造
RC
リノベーション面積
70.56㎡
施工期間
1.5ケ月
備 考
ナグラ産業株式会社
ツイート
PAGE TOP
築37年のRCマンションを、友人を呼んでパーティーやお茶会等をやりたい人をターゲットに設計を構築。