![]()
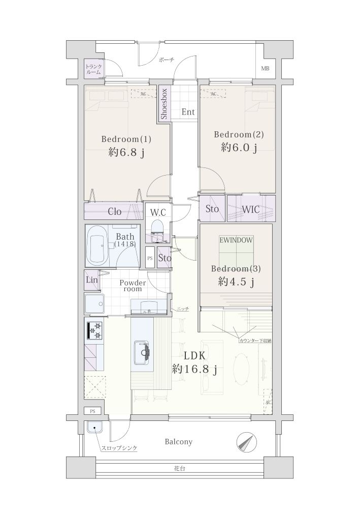
都市部のマンション暮らしでは、採光や庭空間といった自然を感じる余白が得づらく、暮らしに心地よい伸びやかさが不足しがちです。本プロジェクトは、居室の一部を「中庭」と見立てることで、その制約を乗り越えました。縁側風のデザインで空間を仕切り、光の取り込み方を工夫することで、室内でありながら屋外のような解放感を楽しめる空間を実現。そこは、夫婦でくつろぐアウトドアリビングにも、子どもの遊び場にも、あるいは朝の光を浴びるワークスペースにも変化します。暮らしのシーンごとに柔軟に役割を変える“余白のある住まい”を提案することで、ディンクスからファミリー層まで幅広い世帯に「自分らしい過ごし方」を提供します。
また、「多くのマンション再現可能であること」、「奇抜なリノベーションで流通性を損なわないこと」という制約を設け、一つの居室内で完結することに拘り予算を抑え、人工芝の下にはフローリングを施工し必要に応じて通常の居室へと容易に切り替えることができます。さらに、室内にはあえて固定的な造作物を設置せず、模様替え感覚で様々な用途に可変できるよう工夫しているため、ライフスタイルの変化に寄り添いながら永く使い続けることができます。
マンションにいながら自然とつながり、暮らしを豊かにする新しい住まい方の選択肢として、既存住宅の可能性を広げる一歩となりました。
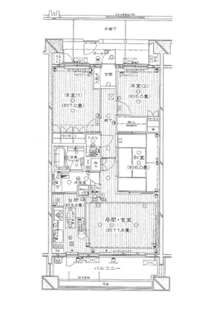
BEFORE
多くの住まいで見かけるリビング横の和室。今回のコンセプトを実現するにあたり、住む人が自然と集まるリビングに隣接したこのスペースこそが最適だと考えました。ただし、本リノベーションは廊下に面した居室など、専有部分内であればどの空間でも実現が可能であり、住む人のライフスタイルに合わせて柔軟に対応できる点も大きな特徴です。

