![]()




築20年、180㎡超というゆとりある大型マンション。
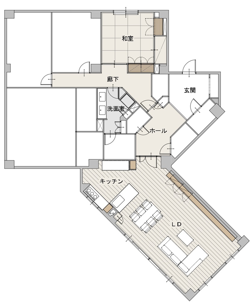
しかし、その広さゆえに生活動線は曖昧で、かえって日常を煩わせる場面が少なくありませんでした。
今回のリノベーションのテーマは「広さを誇る家」から「心地よく暮らせる家」への再構築。
奥様が一番不満だったキッチンの動線を見直し、調理中も家族の団欒に自然と交われるようなプランに変更。
LDK全体としては、食器棚やテレビ回りの物が仕舞えず雑然として落ち着きの無い印象でしたので、
横のラインを強調した、一体感を与える造り付けの家具を設置して日常で使う物を全て収納出来るようにしました。
日々緊張感のあるお仕事に従事されている施主様のご要望である、
ホテルライクな非日常性と和の安らぎが欲しいというご希望を叶えるしつらえを心掛けました。
当社のリノベーションの特徴は、デザインを押し付けるのではなくあくまでもお客様が主役であること。
日々の困りごとや住まいへの思いを丁寧に引き出し、一人ひとりの「好き」や「個性」を空間に反映することを
いつも大切に考え、本件でも、施主様のライフスタイルに寄り添いながら、唯一無二の住まいを実現しました。
バブル崩壊後の2000年頃、地価が下がりデベロッパーが供給した富裕層やファミリー向けの大型マンションも
築25年を向かえ、今後この様な案件が増えて来るかもしれません。
BEFORE
緑豊かな閑静な住宅街に建つ築20年、180㎡超というゆとりある大型マンション。
LDKが広すぎて家具の配置が分からない。また、収納が無いので雑多になりがち。
キッチンで調理しているとリビングとの距離があるので孤立感がある。
マンションでは珍しい大きな床の間のある真壁造りの古風な和室は、
日々の生活からリフレッシュ出来るような癒しの空間に変えたい。

