![]()
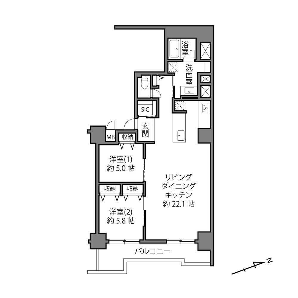
窓が少ないという物件ネックを払拭するためLDK中心の2LDKプランを計画しました。LDKは窓に接するように配置することで自然光を取り入れ22帖の広さを確保しました。梁の関係でキッチンの位置がLDから奥まった場所となってしまうため、前面壁を無くすことでオープンにしながらも柔らかく仕切られるように、ネックとなる梁を境界線として活かしました。改修前は玄関に入った瞬間も暗かったため、玄関から直接LDKへと続くように計画しました。玄関に入ると最初にキッチンが出迎えてくれるので、カフェに来たような不思議な体験ができるのも特徴の一つです。また極力廊下をなくすために、洋室はLDKからアクセスできるようにしたことで、家族同士のコミュニケーションが自然と生まれるようになっています。洋室の一室は窓に面することができないため、天井付けの室内窓を設置し、採光を確保するとともに、空間のアクセントとしました。内装は少しでも明るい空間になるよう、柔らかく温かみのある色味のものを選択し、木と白を基調にしています。自然豊かな吉祥寺の要素を取り入れるために、リビング・ダイニングの天井にシナベニア、キッチンの壁にタイルを貼り、素材感を出しました。
BEFORE
1978年竣工ながら築年数を感じさせない佇まいのヴィンテージマンション。本件は12階に位置する一室をリノベーションしました。改修前の間取りは3LDK。83平米という広さにも関わらず、東面に窓が2面しかなく、奥に深い形状。LDKは窓に面していなく、キッチンは奥まった箇所にあり、何となく全体的に暗く、狭く感じてしまう空間でした。また、大きな梁が通っている関係でキッチンの配置に制限があったり、配管の関係で洗面の位置がずらせなかったりと制限も多くあったので、間取りもある程度決まってしまう状態でした。その制限を受け入れ、少しでも明るく開放的な空間となるような空間になるように計画していきました。

